项目名称 | 佛山伦教铂悦都会样板间
项目地址 | 广东 佛山
开 发 商 | 金科地产
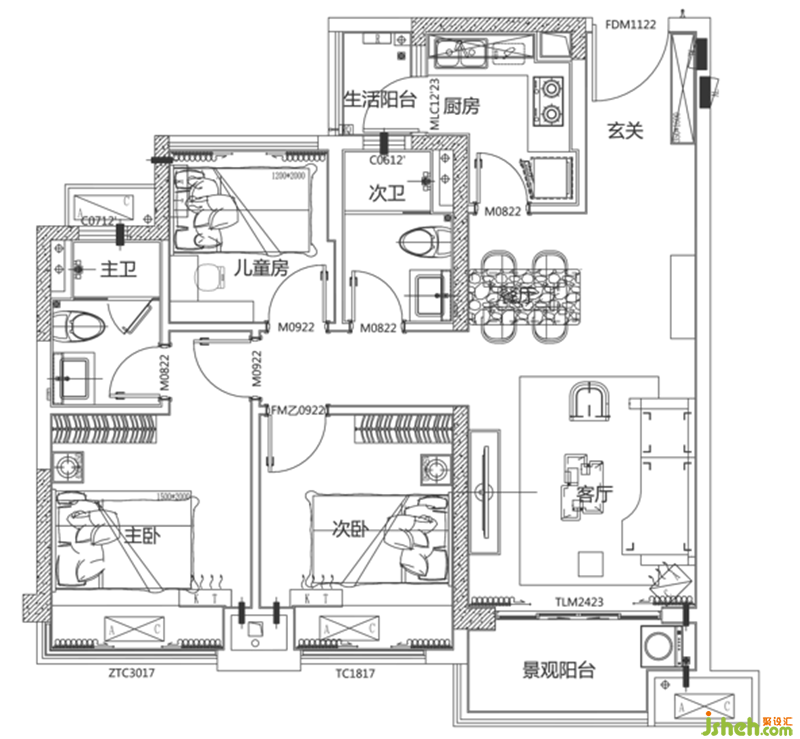
项目面积 | 89㎡
全案设计 | 树美国内设计中心
设计团队 | 郑颖、卢楷蓉
灯光产品设计 | 宽窄灯具设计制造
完工时间 | 2020年11月
项目摄影 | 江南摄影
我愿深深的扎入生活,吮吸生活的骨髓,过得扎实、简单,把一切不属于生活的内容剔除得干净利落。
——梭罗《瓦尔登湖》
在这个89㎡的生活空间里,被设定为一个IT企业技术人员余汶乐、公务员太太王棠韵和儿子余科迪的三口之家。
一年一度的 “ 盈香油菜花节 ” 是佛山最大的旅游文化活动之一。每一届都有新的亮点和新的活力,俨然成为珠三角一张靓丽的旅游名片。为了与当地文化背景相契合,我们取之清新的油菜花黄及春天的生机嫩绿,融合到空间之中,加以男女主角的日常习惯及兴趣爱好,让整个屋子承载着一家人的温馨、欢愉。
经Shawn和Sarah商量之后,决定挂上立体圆润的风趣挂画,来展现家庭风趣,热情和充满活力的一面。

出于舒适度考虑,他们购置了具有较耐看的米色皮质沙发。Sarah觉得,皮质一定程度上避免了游戏时饮料倾泻的污损,Shawn则认为:其柔软的触感能确保自己在长时间的使用也感到舒适放松。

