项目名称 | 中山鸿瑞壹品样板间
项目地址 | 广东 中山
开 发 商 | 高瑞地产
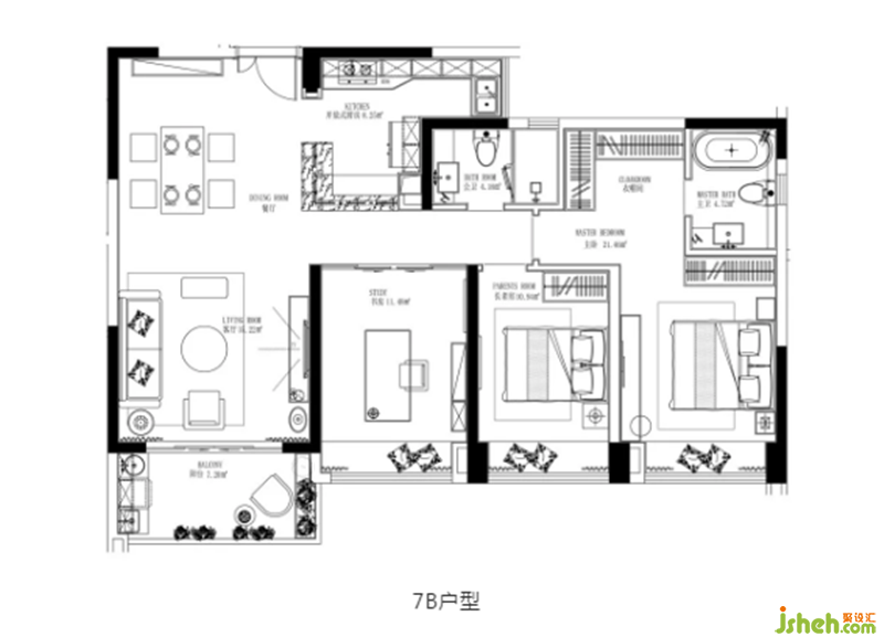
项目面积 | 7 B-89㎡
软装设计 | 树美国内设计中心
设计团队 | 郑颖、卢楷蓉、郑媛媛
灯光产品设计 | 宽窄灯具设计制造
完工时间 | 2020年07月
项目摄影 | 郑普尤
每座城市都是一个不断成长的生命体,古香山与新中山的相遇,真切回应着对生活的美好向往,激发着人们对于城市奥秘的永恒探索。
本着对城市地域与文化的解读,树美团队将设计风格定位为“现代风尚,兼纳中西”,深入设计精髓,还原人文与艺术的本质,将中山过去与当代的文化气质恰到好处的呈现在本次设计中。
7B户型样板房设计依旧以中性的黑白灰为主色调,搭配点缀现代感十足的香槟金色,空间的颜色层次丰富又显时尚优雅。材质以木材、金属及优质的皮料、柔顺的布艺构成,从材料上把控整体软装的品质。
客餐厅相连,靠近餐厅部分选用矮墩布局,去除了视觉上的阻碍,空间极具延伸感。家具造型简洁干练,为了协调统一整个空间,主色调均以黑白灰为主点缀一抹绿意,品质十足的皮料与金属色的碰撞使空间呈现轻奢的质感。




生活里一半是理性绅士,一半是缥缈水色,聆听自然的独白,回归内心的澄澈与自由。我们去芜存菁,不复制也不跟从,也不刻意逆流,只愿能随心所欲,传达内心缱绻的浪漫。
挂画均采用新型复合材质进行制作,不仅仅是美观,更像是新时代的一种标志,就如同中山这座城市:急速发展,欣欣向荣。由于男主人设定为建筑设计师,雕塑我们选用了 Naum Gabo 的作品,它像一个解构建筑,从侧面体现了男主人的职业。Naum Gabo 是一位解构主义雕塑家,采用“立体测量法”的手法建造不同的雕塑,这是他从建筑设计中引用的几种技术之一,为解构主义的发展做出了重要贡献。

餐厅


餐厅四椅的配置满足一家人的用餐需求,桌面采用大理石的材质来增加用餐的舒适度与体验感,配上金属质感的材质,整体线条流畅细腻,纤薄的椅背,使用餐氛围更加精致,围坐在餐桌前,餐具轻奢至简,只留美食滋味回荡于唇齿之间。
