项目名称| 金科大连旅顺高层样板间
项目地址| 辽宁 大连
开 发 商 | 金科地产
项目面积 | 80㎡
软装设计 | 树美国内设计中心
完工时间 | 2020年06月
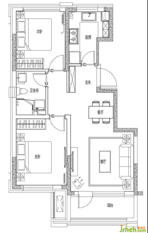
▲平 面 图
金科集团以“美好你的生活”为宣传方向,客群更倾向于注重家庭,懂得平衡工作、追求内在品质的中高端阶层。经研究显示:20-39岁的年轻人在中高端人群中占比居多,他们更加年轻个性化,对艺术的感知更敏感。本期树美室内设计师团队将为其量身打造符合该人群喜好的高品质艺术生活空间。
设计思路 :点线面,给人冷峻、内敛、睿智的总裁作风,让空间的气场弥漫一种简约的优雅。
电影《五十度灰》中的空间设计,也运用了这种构图手法,干净利落的线条,恰到好处地体现了空间层次,并带来一种纵深感,将优雅与沉静的意趣延伸开来。与五十度灰的高冷范不同,空间以祖母绿为跳跃色,增强了一些灵动的饰品,它们散发着时尚和生机,让空间妙趣横生,缱绻曼妙时光。树美室内设计师们选用了实用的隐藏式收纳柜,让空间保持简洁、易于打理,并通过点线面的立体构图,让空间感更加开阔,给人以领袖的视野。

▼遇见你们, 是我最美丽的记忆
只有当过去与未来相结合时才能看到现在的魅力,这便是岁月的沉淀,艺术的力量。精心刻画的几何形体,以完美的比例相融合在贵重的金属上,其切割面反射出美轮美奂的光忙。超越物质,造型艺术关乎所有细腻的、难得的、脆弱的情感,并与心灵深处相连接。
一、行影相随 · 遇见

▲玄关
二、千形万态 · 乐见


客厅延续了建筑及室内细腻的氛围。优雅安逸的色调贯穿整个空间,点缀绿色对比。香槟金属来自金器本身的光泽,提亮整个空间质感,形成现代简约、精致与细腻并举的空间氛围。