老 人 房
▼
卧室注重家居舒适感与实用性的居家美学观念,通过高级皮革、石材、金属、实木等材料的拼接镶嵌,呈现出更具价值感的空间氛围。
The bedroom pays attention to home comfort and practical home aesthetic concepts. Through the mosaic of high-grade leather, stone, metal, solid wood and other materials, it presents a more valuable space atmosphere.

儿 童 房
▼
我们以色彩烘托空间氛围,也以色彩构筑空间属性。男孩房的设计极具时尚感,以蓝色为空间主色调,用橙色的点缀对比来延续空间的活力。悬挂的星球吊灯、桌面上的飞船装饰画与摆件让童真的气息填满了整个空间。样板房设计
We use color to accentuate the atmosphere of the space, and also use color to construct the spatial attributes. The design of the boy room is very fashionable, with blue as the main color of the space, and the contrast of orange embellishment to continue the vitality of the space. Hanging planetary chandeliers, spacecraft decorative paintings and ornaments on the tabletop fill the space with a childlike atmosphere.


好的设计,不是堆砌或是繁复,而是潜入生活本身,本着对生命本源和生活本真的热爱与探索,深度挖掘与觉察客户真正的需要与诉求,打造赋予生命情怀的生活方式。样板房设计
Good design is not about piled up or complicated, but to sneak into life itself, with a deep love and exploration of the origin of life and life, dig deeply and be aware of the real needs and demands of customers, and create a life style endowed with life feelings.
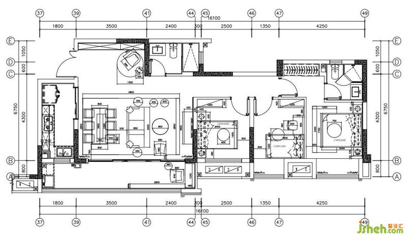
平 面 图
▼
▲样板间
▲公区