客厅作为空间交互的中心,大片落地窗与开阔的阳台,让光线被最大化地保留。扑面而来的绿奠定了空间的清凉感,金属元素以不同形态点缀在家具、灯饰的细节上,空间显得更加清透、明澈。当代都市人追求的绿洲情调随着颜色和材质的晕染,意境全开。
The living room serves as the center of spatial interaction, with large floor-to-ceiling windows and open balconies that allow light to be maximized. The rushing green laid the coolness of the space, and the metal elements were embellished on the details of furniture and lighting in different forms, making the space more clear and clear. The oasis sentiment pursued by contemporary urbanites is full of mood with the blooming colors and materials.


万事万物皆为自然而造,绿色在这个家中承载着如大树般的凝聚力,紧紧地将每个空间连接在一起。让绿意涌动在每一个细节,软装与都市绿洲的理念才得以真正地交织交融。主卧以高品质的床品呈现生活的精致感,家里的每一个人都是空间的一部分,在家放松地做自己,那便是属于自己内心安适的房子。
Everything is made for nature, and green bears the cohesion like a big tree in this home, tightly connecting each space together. Let the greenness flow in every detail, and the concept of soft clothing and urban oasis can be truly intertwined. The master bedroom presents a refined sense of life with high-quality bedding. Everyone in the family is a part of the space. Become yourself relaxed at home. That is the house that belongs to you.

▼书房 | study

插画、鹦鹉玩偶与图书绘本等有序陈列在儿童房空间中,设计对孩童生活场景与精神世界作以细致的描绘,辅以明亮的色块与线条进行点缀,纯粹简净的日常定格在此间。样板间设计
Illustrations, parrot dolls, and book books are displayed in an orderly manner in the children's room space. The design depicts the children's life scene and spiritual world in detail, supplemented by bright color blocks and lines, and the pure and simple daily setting is here.

用简约明亮的风格,摒弃繁杂的装饰,打造舒适的居家环境。回到家中,卸下工作与生活的压力,放慢快节奏的生活,在日常里享受生活的乐趣。样板间设计
Use simple and bright style, abandon complicated decoration, and create a comfortable home environment. Back home, relieve the pressure of work and life, slow down the fast-paced life, and enjoy the fun of life in daily life.
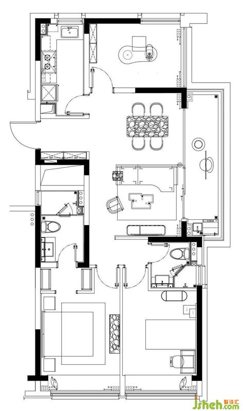
A1户型
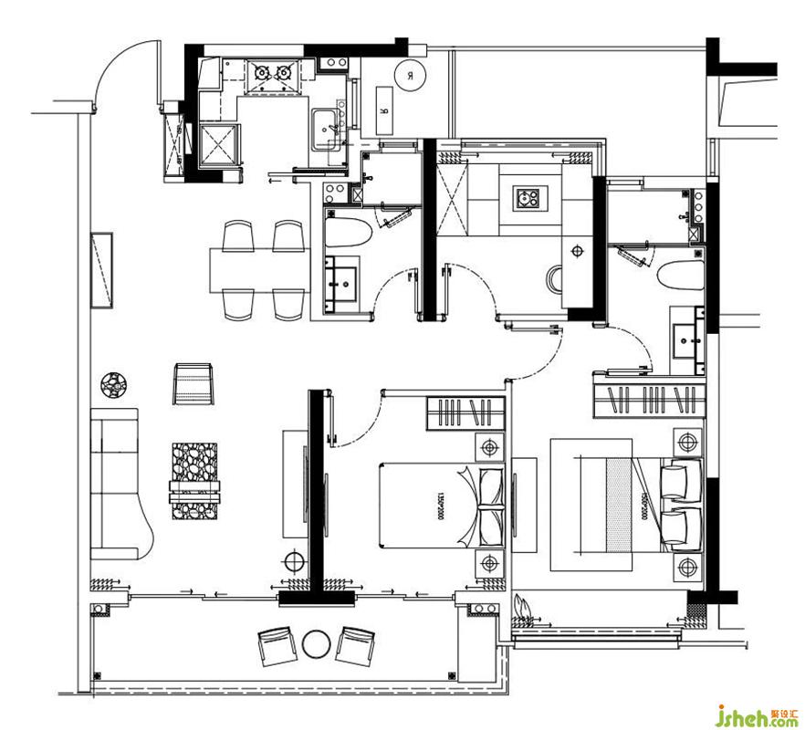
A2户型