儿童房
Children's room
男孩房在整体色调基础上,根据房间的不同功能调节了颜色配比,男孩房相对调增,呈现出稳重与活力两种倾向。让形式服从功能,附加装饰点到为止,是轻奢风的最佳注释。
On the basis of the overall hue, the boy's room adjusts the color proportion according to the different functions of the room. The boy's room is relatively increased, showing two tendencies of stability and vitality. Submission of form to function and additional decorative points until now is the best comment of light luxury.



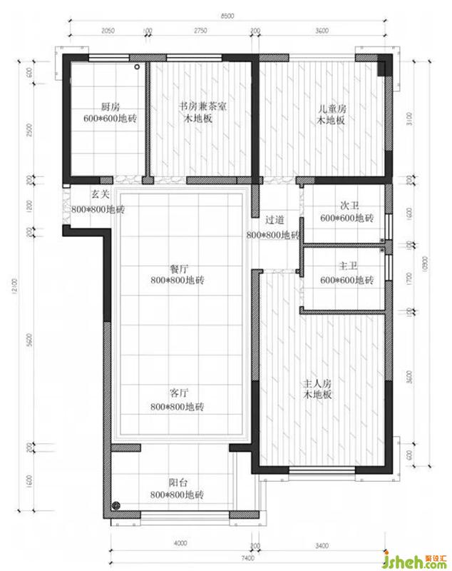
平面图
Floor plan
