老人房 | Elder Room
老人房的布设延续了素净的色调,东方的韵味是深厚浓郁的。几何艺术的变奏,在方圆分寸之间,与干枝花艺对比鲜明,素雅间亦有和润质感。样板房设计
The layout of the old man s room continues the plain color, and the oriental charm is deep and rich. The variation of geometric art, in the range of the square, is contrasted with the dry branches, and there is also a sense of harmony in the elegant.



儿童房 | Children's Room
儿童房贯穿主题以曲艺梅花鼓为主,挂画中女孩子的形象,一定是古典气韵,矮鼻子,婴儿肥,红腮......真的可爱!一场美梦、一段深情,画面背后,则是具备文化传承的内在,对美好的渴望。
Throughout the theme is the Quyi plum blossom drum, the image of the girl in the painting must be classical, short nose, baby fat, red dragonfly... really cute! A dream, a deep affection, behind the picture, It is the inner desire for cultural heritage and the desire for beauty.

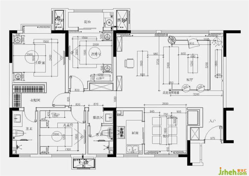
平面图 | Floor plan
△95㎡户型平面图
△135㎡户型平面图