项目名称:融侨.厦门集美样板间
Project Name: Rongqiao. Xiamen Jimei Model Room
项目地址:福建 厦门
Project Address: Fujian Xiamen
开发商:融侨集团
Developer: Rongqiao Group
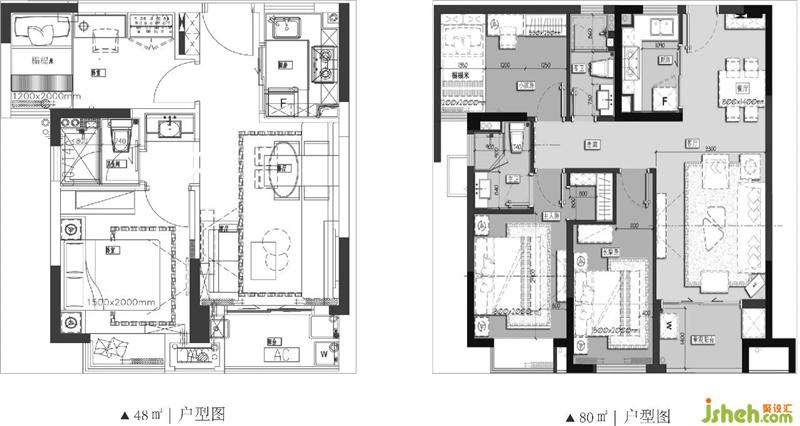
项目面积:80㎡、48㎡
Project area: 80㎡,48㎡
软装设计:树美设计 二中心
Soft design: Sumay Design
完工时间:2018年10月
Completion time: October 2018
项目摄影:帝成传媒·大白哥
Project Photography: Dicheng Media. Mr.BigWhite
29年品质融侨,四载厦门深耕
不断探寻与塑造极致人居的可能
29 years of quality Rongqiao, four years of deep cultivation in Xiamen
Constantly exploring and shaping the possibilities of ultimate living
80㎡-B户型
艺术气息 | 时尚生活
爱马仕 | 简奢风格
Hermes | Simple style
虚实之间 | 时尚生活
Between the real and the virtual | fashion life
▼空间效果图 | Rendering
几何元素的新潮总是不落伍的。它的流动与灵巧,总能为空间增添一份奇妙的美感!样板房设计
The trend of geometric elements is always out of date. Its flow and dexterity can always add a wonderful beauty to the space!


几何美感的配饰,与幽微神秘的拉斯香槟金家具相交融,碰撞出时尚的艺术火花。家具不仅体现时尚的艺术气息,更营造出知觉心理中的虚实之道。样板房设计
Geometrically beautiful accessories blend with the mysterious Las Champagne gold furniture to create a spark of fashion. Furniture not only reflects the artistic atmosphere of fashion, but also creates a virtual and real way in the psychology of perception.


卧室 | bedroom
爱马仕的品牌元素、品牌色彩以及质感在整个卧室充分得以体现,表达了空间的时尚与优雅。而与如今已被过多宣扬的符号化豪奢相比,爱马仕的品牌理念中,最动人的反而这种是回归宁静的出世哲学。样板房设计
Hermès' brand elements, brand color and texture are fully reflected, expressing the fashion and elegance of the space. Compared with the symbolic luxury that has been over-promoted today, the most touching of Hermès' brand concept is the return to the quiet philosophy of birth.




