项目名称:龙湖.青岛胶州天街样板间
Project Name: Longhu. Qingdao Jiaozhou Tianjie Model Room
项目地址:青岛 胶州
Project Address: Qingdao Jiaozhou
开发商:龙湖集团
Developer: LongFor Group
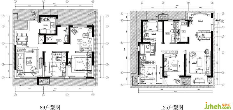
项目面积:89㎡、125㎡
Project area: 89㎡,125㎡
软装设计:树美设计 二中心
Soft design: Sumay Design
完工时间:2018年8月
Completion time: August 2018
项目摄影:帝成传媒·大白哥
Project Photography: Dicheng Media. Mr.BigWhite
作为龙湖商业的代表项目——天街系,青岛首座龙湖天街的入驻,以龙湖品牌的强大号召力,扩大胶州新商圈的影响、启幕胶州中心商圈的变革。
As the representative project of Longhu Commercial, Tianjie Department, the first Longhutian Street in Qingdao settled in, with the strong appeal of Longhu brand, expanding the influence of Jiaozhou new business district and opening the transformation of Jiaozhou Central Business Circle.
一座天街 | 改变一座城
生活就是每天要过的日子,但生活又不仅只是每天重复的日子。龙湖天街,不仅满足日常需求,更带来新鲜、意外和灵感、“点亮”每个平凡的日子和全家人的美好记忆。
One Sky Street | Change a City
Life is the day that we have to live every day, but life is not just a day of repetition every day. Longhutian Street not only meets daily needs, but also brings freshness, surprise and inspiration, and “lights up” every ordinary day and the memories of the whole family.
快节奏 | 慢享受
高楼林立的城市,车水马龙的街道。快节奏的生活,马不停蹄的脚步。城市之中找寻一处“人间至境”。让繁华与自然、忙碌与惬意同时上演。
Fast pace | slow enjoyment
A city with high-rise buildings and busy streets. A fast-paced life, non-stop footsteps. Look for a "human world" in the city. Let the bustling and natural, busy and cozy at the same time.
89户型 | 轻奢风格
客餐厅 | Guest restaurant
白色和蓝色为空间的主色调。注入黄色加以点缀,搭配金属材质,鲜明对比之下,总给空间一种大方利落的感觉。
White and blue are the main colors of the space. Infused with yellow to embellish, with metal material, in sharp contrast, always give the space a generous feeling.



卧室 | bedroom
以更简洁、硬朗的线条替代复杂元素。精致的金属元素凸显质感,简洁朴素的外表之下,折射出一种隐藏的贵族气质。
Replace complex elements with more concise, tough lines. Exquisite metal elements accentuate the texture, and under the simple and plain appearance, it reflects a hidden aristocratic temperament.

