书房
—
Study room
书房用全屋式榻榻米设计,一边是办公区,一边是储物区,中间是休闲区,功能全面,是突出了榻榻米小而精的特点。家装设计下沉式办公桌的设计,可以在工作之余,方便休息。
The study is designed with full room tatami. One side is the office area, the other side is the storage area, and the middle is the leisure area. It has comprehensive functions, highlighting the small and fine characteristics of tatami. The design of sunken desk can facilitate rest after work.
次卧
—
Secondary recumbent
主卧
—
Master bedroom
主卧用简而巧,让卧室兼具了空间的明阔感和实用性。对于传统的“衣柜靠着床”,反其道而行之,把衣柜搬到了阳台,家装设计让“衣柜靠着窗”,极大释放了睡眠空间。
The master bedroom is simple and skillful, which makes the bedroom both bright and practical. In contrast to the traditional "wardrobe against the bed", we moved the wardrobe to the balcony and let the "wardrobe against the window" greatly release the sleep space.

同时,家装设计在阳台处还定制了低储物柜和书柜,更加增强了卧室的功能性。看书、写字、工作、玩电脑,都能在卧室实现。宽敞的衣帽间,还为牧牧(宠物)提供了一个玩耍空间。
At the same time, low lockers and bookcases are customized at the balcony, which further enhances the functionality of the bedroom. Reading, writing, working and playing computer can be realized in the bedroom. The spacious cloakroom also provides a play space for mumu (pets).
卫生间
—
Toilet
家装设计用浴室隔断分出了干湿两区域,整体简洁实用,干净明亮。
The bathroom is divided into dry and wet areas, which is simple, practical, clean and bright as a whole.
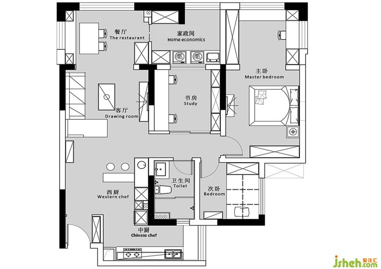
原始结构图&平面设计图
—
House type&Plane design

更多家装设计请关注聚设汇装修平台: