项目信息
项目地址 I Project address:四川内江 · 金科王府二期
面积 I Square Meters:157㎡
项目类型 I Project type:平层
服务团队 I Service team:内江十亩设计
这里的时光斑驳,
开出的花大朵大朵。
这里看得见阳光里的粒粒尘埃,
也看得见月光下的漫天星海。
【设计改造】
▲原始结构图
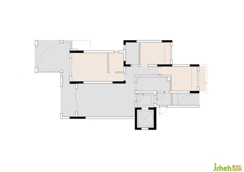
▲平面布局图
客厅
—
Living room
客厅突出布局的精巧和装饰的雅致。色彩上,奶咖色作为整个空间的主基调,十亩家装设计奠定了客厅静谧祥和的基础。



蓝色电视墙和酒红色窗帘非常亮眼,提升了客厅鲜亮感。十亩家装设计顶面吊顶边线没有用司空见惯的单线条,而是用虎头线和圆边拱形门框来丰富空间层次。

壁炉火焰、水晶吊灯、组合挂画、金属配件让空间拥有了多变的情绪。十亩家装设计家具搭配拒绝单一,黑色茶几尽显沉稳,乳白色的法式沙发舒适典雅,朱砂红单椅充满复古气息。各种搭配让人应接不暇,实现了“1+1>2”的效果。