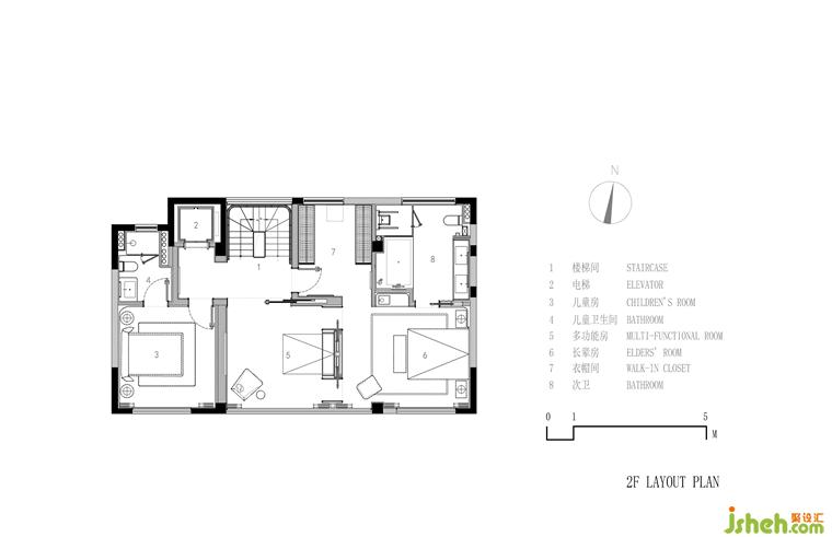
考虑到空间的多变性与时间延展性,于二层设置多功能房。可升降隐形床能实现不同需求下的功能转换,白天变身儿童娱乐区,夜晚则是保姆间,陪护幼儿起居。房间一侧巧设两扇门与老人房相连,互动性与私密性兼具。



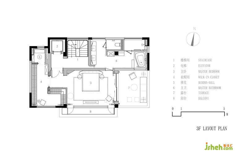
岁月静好,恬淡悠然,似有若无的韵律在主卧流淌。衣帽间、珠宝柜、佛堂及豪华浴室构成完备的功能区,温暖柔和的色调,流畅开阔的动线,北京半山别墅设计以及合理规划的露台,让室内外连为一体,日月星辰,四时八正,最好的风景皆可囊括其中。

灵动、隽永的主卫,以大理石铺就,释放出温煦的自然之美,丰富的光感,舒适的视觉呈现,配合浴缸与壁炉的温馨打造,北京半山别墅设计赋予更高品质与仪式感。
室内设计或许有千万种表达,但落到实处,终归是打造最契合居者个性与气质的家。这座五层别墅承载着家庭成员对未来生活的期许,世亮与艾未设计团队,以灵活多变的布局,完备的功能分区,自然与艺术的点缀,描绘出居者向往的栖心之境。任时光荏苒,人事纷繁,灵魂与爱皆有所依。
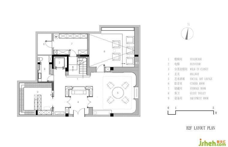
负二层平面图
负一层平面图
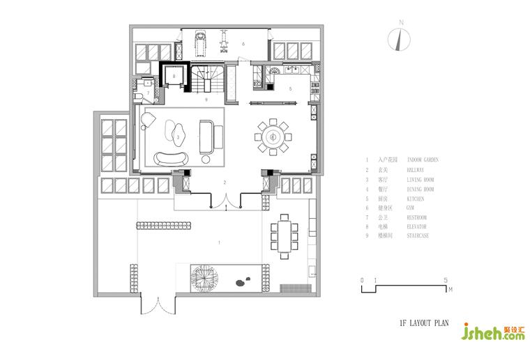
一层平面图
二层平面图
三层平面图
更多北京半山别墅设计请关注聚设汇装修平台: