欢迎光临聚设汇,装修找设计就上聚设汇!
   咨询电话:15602987227
登录    注册
聚设汇
首页 > 商业 > 天敔湾上叠样板间设计

天敔湾上叠样板间设计

巡礼

盎然生机

弗洛伊德认为:“体验是一种瞬间的幻想。瞻望未来、创造美景,通过瞬间幻想来唤回过去的乐境。”

开阔的顶楼露台让人置身于迷人景色中,大自然风格与休闲氛围共冶一炉,在柔和的灯光的映衬下,缔造和谐圆融的独特体验。

在视线可达的关系之中,于山水相环的天敔湾之中,感受这历朝历代的城市之变迁,空间之意向,文脉之传承。远离尘嚣,照见天地,将一切心情诉诸自然。栖身湖山头排,达成精神世界和山水语境的默契。

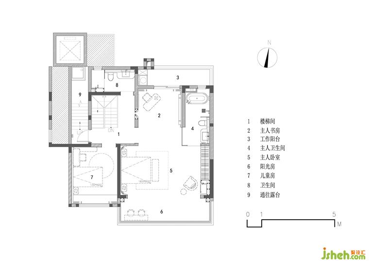
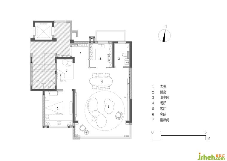
△项目平面图

更多样板间设计请关注聚设汇装修平台:

上海艾未设计创始人兼设计总监

设计收费:1000 元/平             

擅长类型: 地产

在线咨询

扫描二维码关注我们的微信

深圳市聚设汇文化传媒有限公司
主编热线:15602987227
总部:深圳市罗湖区梨园路128号宝能汽车大楼416单元
佛山、东莞、成都、重庆、福州、厦门、南昌、武汉、
杭州、苏州、温州、郑州、长春、沈阳、贵阳、柳州、
哈尔滨、九江等城市设立办事处
© 2017-2021 Jsheh.com 版权所有 粤ICP备17079093号
展开
回到顶部