欢迎光临聚设汇,装修找设计就上聚设汇!
   咨询电话:15602987227
登录    注册
聚设汇
首页 > 家装 > 成都蜀郡家装设计:慵懒木屋

成都蜀郡家装设计:慵懒木屋

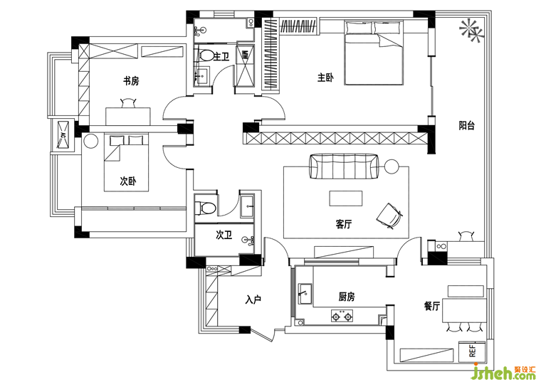
屋主希望家里通透、各空间有互动,所以屋主使用了较多木质窗元素,使各空间相互连接;此外,选择较多成品家具,更具灵活性。

女主人希望家里每个空间都是有互动的,成都蜀郡家装设计在客厅里不止能闻到厨房传来的香味,也能看到做菜的人。与设计师沟通后,一致决定在这儿开扇窗。

男主人不希望窗开的太大,一番拉扯之后,各退一步,最终呈现出现在的效果。后期还可在左侧粘贴软木板,装饰各种明信片、照片。

屋主喜欢轻巧可移动的家具,成都蜀郡家装设计于是便选择了了可拼装的极有家置物架,无厚重的提快感,简洁且用途多样。

更多成都蜀郡家装设计请关注聚设汇装修平台:

拾光悠然设计团队

设计收费:200 元/平             

擅长类型: 家居住宅,豪宅别墅

在线咨询

扫描二维码关注我们的微信

深圳市聚设汇文化传媒有限公司
主编热线:15602987227
总部:深圳市罗湖区梨园路128号宝能汽车大楼416单元
佛山、东莞、成都、重庆、福州、厦门、南昌、武汉、
杭州、苏州、温州、郑州、长春、沈阳、贵阳、柳州、
哈尔滨、九江等城市设立办事处
© 2017-2021 Jsheh.com 版权所有 粤ICP备17079093号
展开
回到顶部