Project Information
Area / 145㎡
Layout / 4室2厅2卫
Type / 精装房
Price / 24w
Mode / 全案设计 + 施工服务 + U然木作
Address / 保利拉斐云邸
Design / © 拾光悠然设计 设计一组
Photo / © 独立空间摄影 李云翔
[ 两人两喵,生活图鉴 ]
本成都家装设计项目的屋主是一对年轻小两口,都在医院工作,养了两只猫主子,一只很胆小到处躲,一只像村委会大爷四处溜达。
两人都很喜欢悠闲舒适的感觉,希望回到家就像在度假:既可以和猫主子一起晒太阳,也可以在疲惫的时候睡个昏天暗地。
145㎡,两人居住绰绰有余,功能性上的要求并不迫切。如何住得舒服、让人感受到居住于此的幸福感,是我们要解决的问题。
回归家的本质,其实就是生活场所。我们通过讨论居住者的需求,来制订平面方案,再一步步落实到施工上,最终构成一个个生活场所。
成都家装设计而每套方案的差异,归根结底是居住者的差异:家庭结构、生活习惯、职业要求、兴趣爱好……所有因素组合在一起,使得每个人“幸福的点”不同。我们要做的,就是找到他们幸福的点在哪里!
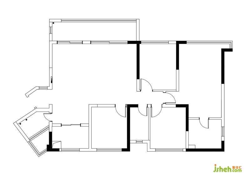
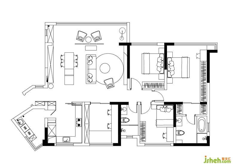
户型/思路

成都家装设计作为一套精装房改造项目,原始的空间分布比较规整,不需要大面积的墙体新建拆改,只用进行小范围的空间优化:
❶. 入户+厨房+生活阳台:原始户型中,餐厅、生活阳台和厨房都集中在入户左侧,每个空间使用起来都非常局促。因此我们将厨房空间扩大,生活阳台门后移,以隐形门的形式,与从入户延伸而来的饰面板融为一体,优化空间的同时,扩充鞋柜面积,削弱入户门的这道“拐”。
❷. 客厅+阳台:将客厅和阳台打通,中间以屏风隐约阻隔。阳台放置藤编休闲椅和猫砂盆、猫爬架,作为人和猫咪的休闲玩耍区域。
❸. 主卧+衣帽间:新建移门,移门与卫生间之间的区域,作为小的衣帽间,与主卧衣柜共同组成细致的收纳系统。
休闲
满足需求
让Ta住的舒服

餐厨区用着爽不爽,“煮夫”和“煮妇”的心情如何,成都家装设计直接决定一个家的幸福指数。