Project Information
Area / 121㎡
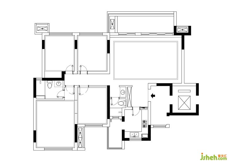
Layout / 4室2厅2卫
Type / 精装房
Price / 42w
Mode / 全案设计 + U然木作 + 跟踪服务
Design / 拾光悠然设计
Photo / 又与空间摄影 普尤
[ 家 庭 结 构 与 居 住 需 求 ]
有了小朋友以后,家庭的需求发生变化。家装设计一方面是小朋友与日俱增的衣物、玩具,导致收纳需求暴涨;另一方面是考虑到小朋友的安全性和成长性,加之工作上的变动,屋主两人决定置办新家,为家庭成员换个更加舒适的场所。
对于屋主而言,家是能让人放松下来的地方,一回到这儿,身心总是温暖、自在的。丰富的旅游经历,一次次与自然的亲密接触,也让两人对自然元素多一分偏爱。
户型/设计思路


原始为套四户型,而常住人口只有一家三口,亲朋好友基本不会留宿,套四的户型绰绰有余。为了提升居住品质,家装设计本套项目由套四改成了套三,房间配置为:主卧,衣帽间,儿童房,书房。

家装设计在基装方面,厨房、卫生间未做改造。客餐厅和书房的地面使用温润质感的微水泥覆盖,两卧室换为颜色稍浅的木地板,墙面则更换为环保耐擦洗的儿童漆。同时,在适当位置做了圆弧造型,让家以更圆润柔和的状态呈现。
材质上以棉麻、藤编、木质、百叶为主,搭配少量的纸质、金属。配色上则以奶茶裸色为基调,家装设计加入原木色系的木质、柔软的纱麻,加上少量的黑灰色点缀,整个空间舒适而治愈。
入户

原始入户位置是一排鞋柜,现在将置鞋的功能转移到门外,在原来的位置放置装饰玄关柜。家装设计利用波纹板做弧形造型,巧妙遮挡住强弱配电箱,同时配合黑色吊饰和简约色块装饰画,打造奶茶系暖居的第一站。
入户左侧是厨房的位置,原本的推拉门改为艺术玻璃移门,家装设计保证整个公区空间的色系统一。
客厅

横厅尺寸为6.7m*3.6m(不含阳台),需同时满足客餐厅的功能。家装设计两侧有收纳柜和餐边柜,所以实际可利用长度稍显拥挤。于是选择把沙发面向门厅放置,让客餐厅间的通道相对宽敞。