【案例地址】:四川省,成都市,天府新区
【案例面积】:122㎡
【案例类型】:精装房
【案例户型】:4室2厅2卫
【案例费用】:27w
装修设计整体分析
屋主需求Ⅰ
● Demand 1. 中国式精装房的几个要素:墙面、吊顶、地板、踢脚线等,对于这些地方都想要更换,做一定的轻改造。在调性上屋主喜欢轻奢,加一点复古且明亮温馨的感觉。
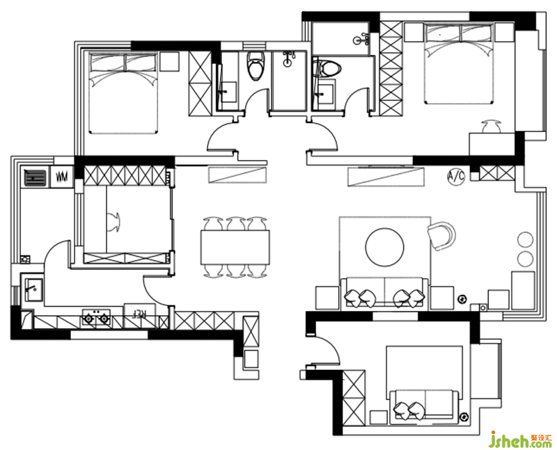
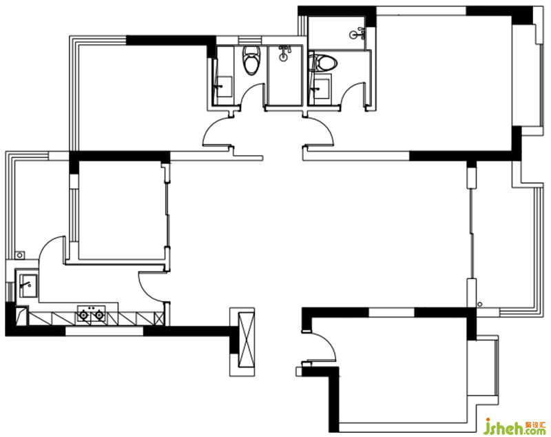
● Solution 1. 拆除原始阳台与客厅之间的墙体,将阳台区域纳入客厅,拓宽整体空间的视野感。更换客厅的石材踢脚线及卧室深色木地板。同时全屋的大部分墙面重新滚涂乳胶漆(ps:乳胶漆的颜色均为设计师亲手调制而成~)而在家具的选择上,以带黄铜元素的单品为软装设计主题。
屋主需求Ⅱ
● Demand 2. 男屋主时常会在家里办公,且书籍及其他物品的储物需求较高。
● Solution 2. 每一个空间都有相对应的储物柜,保证每一个区域在实际使用时都能有充足收纳的地方。此外,将原户型中一个较为鸡肋的房间改造成实用性书房。
屋主需求Ⅲ
● Demand 3. 因为养了两只可爱的喵主子,所以设计时需要考虑到猫的一些生活习性。
● Solution 3. 我们把喵主子的mini“卫生间”,放置在通风的阳台,食盆则放在了餐厅区域。
改造前
改造后
玄关
玄关拆除了原始开发商的鞋柜,根据业主的实际需求和使用习惯进行了新的柜体设计。增加洞洞板+玄关柜的组合,收纳一些日常随身携带的钥匙、包包、雨伞,进门-换鞋-收鞋,一气呵成。

#客 厅 及 餐 厅
在原始基础上,我们将踢脚线拆除,并重组吊顶部分。将原来的休闲阳台纳入室内,增加使用面积,也增加了储物空间。可以用来存放宠物用品及各类杂物,平时也是猫咪的活动区域。客厅的沙发背景墙则做了石膏线的造型,强化了线条美感,同时也跟业主喜欢的空间调性相契合。


电视背景墙连通餐厅的墙面,采用了海基布加乳胶漆的处理方法。同时,装修设计增加了餐边储物功能。厨房保留原始结构,更换了橱柜的柜门拉手,从小细节上改变整体效果。

