在遇到我的主人之前,我是一条居无定所的流浪犬,没有什么高贵的血统,也不知道自己的出处,每天都在思考活着的意义是什么?我们为什么而活着?直到有一天我遇到了她,我才有了名字,才成为了她生活中的点点。相伴十余载,我见证了她每个重要时刻的来临,看着她恋爱,看着她从小姑娘变成小姑娘的妈妈,这些我从未缺席…
从狗龄来说,我已步入老年,活力大不如前,两年前的一天,她说要给我们打造一个新家,抬头就能看见星空并能随时享受太阳的那种…
我想我这辈子所有的幸运就是为了那刻的遇见,遇见她犹如遇见了太阳,在她这,我感受到了前所未有的温暖…别墅装饰
那日,看房完毕,她拿着户型图兴奋的跑回来对我说:“点点,看!有院子!在这里,好好打造一下,你可以跟Alice一起嬉戏玩乐!” 『Alice是我的小公主,是她生命的延续。』“只是这户型有点特别,二楼三楼挑高,我想要一个挑高的客厅,但是餐厅客厅不在一起的话,似乎不方便,怎么办?…”她絮叨着对我说。
那段时间她变得特别忙碌,找设计公司,看室内杂志,学习各种园艺,选择各种材料,为了打造这所Dream house,她付出了很多… 就在她忙的焦头烂额之际,主人从她徐州的同学处,得知了UNCLE沈的设计公司,了解到南京室内设计行业有这样一个公司,可以做设计及施工的全案托管,轻松拎包入住,且已持续了十几年,徐州的别墅当年就是UNCLE沈亲自带队操刀的。
带着各种疑问,主人找到了UNCIE沈,并聊了许多,理念相投,方向一致,很快就开始了项目的设计。
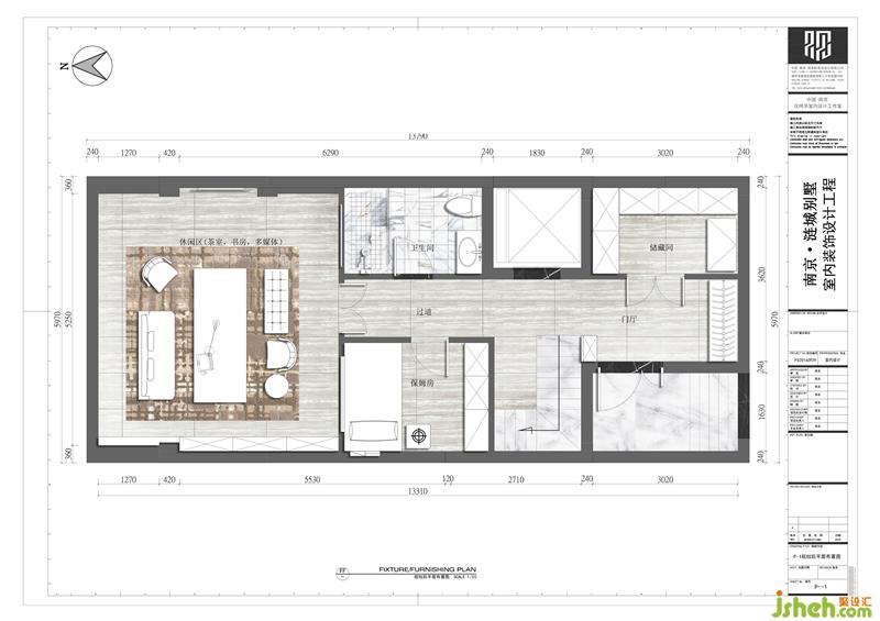
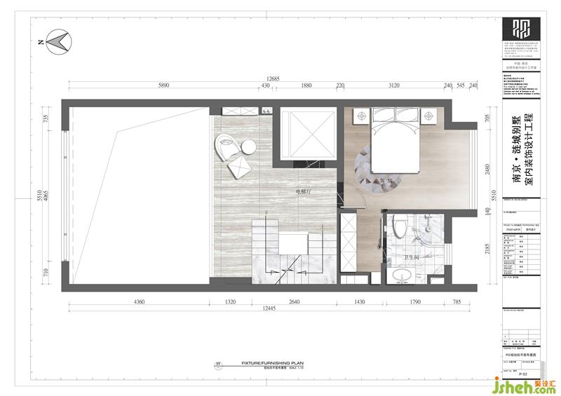
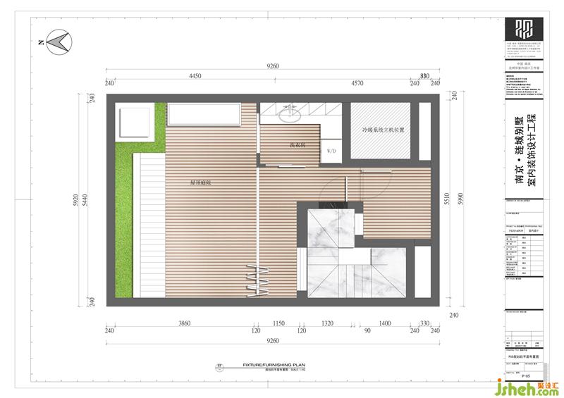
平面布局▼





我一直很好奇主人的同学,为何要把徐州的整栋别墅,大老远的委托给南京的这家设计公司?也很好奇为何主人只见了UNCLE沈一面,就把整个家的打造委托于他?
在后来的聊天及设计过程中,我发现他们是属于频率相同的人,同样的感性、热情、同样的才华横溢,同样的真实、真诚、不造作…
时光总在不经意间悄悄逝去,也渐渐露出了这座Dream house的面容…
一楼客厅

UNCLE沈对主人说,现代人的生活没那么单一,要打破一些常规与限制,在塑造一楼空间时,考虑到家中长辈与我已步入暮年,活泼好动的小主人也时时需要照看,一定要充分考虑家庭结构来进行改造。原有户型二三层挑高,一层只为餐厅的结构并不适合这个家庭。功能划分使用上,一定要更为便捷,并要最大限度的增加一楼的社交功能。虽然他说的我一句也没听懂,但主人很快接受了这样的建议,并充分配合他们实施了起来…
