欢迎光临聚设汇,装修找设计就上聚设汇!
   咨询电话:15602987227
登录    注册
聚设汇
首页 > 商业 > TEMPO KTV设计 | 一路星辰,一路歌

TEMPO KTV设计 | 一路星辰,一路歌

有人说生命的本质就是浪费时间

而我们说“浪费”在有意义的事上就是生命创造的积累

原生质,质生空,空生时,时生万物

KTV设计在世界之大,空间变化之不可预见,时间飞逝之迅速

我们仍如萌芽般充满欣喜与感动去生活

用音乐表达内心的自我

给自己一个闪亮的梦想

「一路星辰,一路歌」

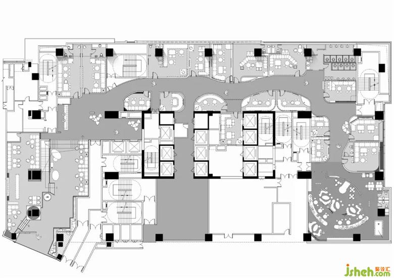
▲一层平面 / Plan View

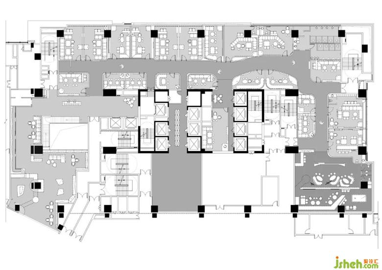
▲一层平面 / Plan View

更多KTV设计请关注聚设汇装修平台:

成都集嘉创意装饰设计有限公司,创始人,设计总监

设计收费:面议 元/平             

擅长类型: 餐厅

在线咨询

扫描二维码关注我们的微信

深圳市聚设汇文化传媒有限公司
主编热线:15602987227
总部:深圳市罗湖区梨园路128号宝能汽车大楼416单元
佛山、东莞、成都、重庆、福州、厦门、南昌、武汉、
杭州、苏州、温州、郑州、长春、沈阳、贵阳、柳州、
哈尔滨、九江等城市设立办事处
© 2017-2021 Jsheh.com 版权所有 粤ICP备17079093号
展开
回到顶部