项目名称:木浴阳光
楼盘名称:中海文化熙岸
项目所在城市:广东佛山禅城区
项目完成日期:2018年10月26日
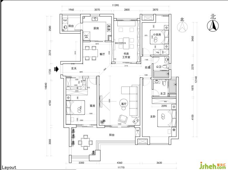
项目面积:167平方
项目总造价:50万

佛山装修公司
业主很喜欢浅色的木纹质感与白色撞击出的温馨气质。极简的日式风格能表达理想的生活方式。浅木色与白色自然散发的悠懒,闲散的生活恰到好处的让空间回归本真,没有一丝丝做作,舒适大方。

佛山装修公司
客厅空间方正空间大,布局上大方处理就好了,空间上主要注重软装的搭配和颜色的层次。白色墙面在桑拿板木条点缀下有一点灵动的色块的,让空间变的有趣味了。
佛山装修公司
橡木框架的餐柜透着自然流畅的纹理,简单好收纳,木格推拉门隔开厨房的油烟的同时还有良好的导光性,进门那一片橡木装饰墙将鞋帽间门客房门展示柜都一样规整在一处了,是装饰墙也是功能墙。
佛山装修公司

佛山装修公司