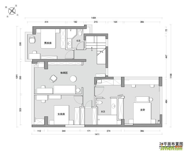
女儿房
Daughter room



男孩房
Son room


三米老师参加家宴时带着速写本和画框,灵感一来,随手画了速写和空心字并框裱起来送给主人。
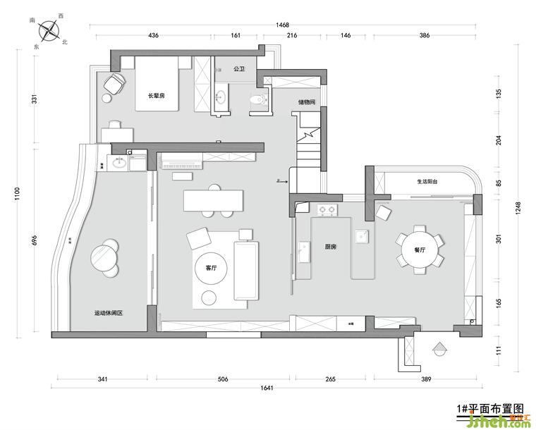
平面布置图
Floor plan
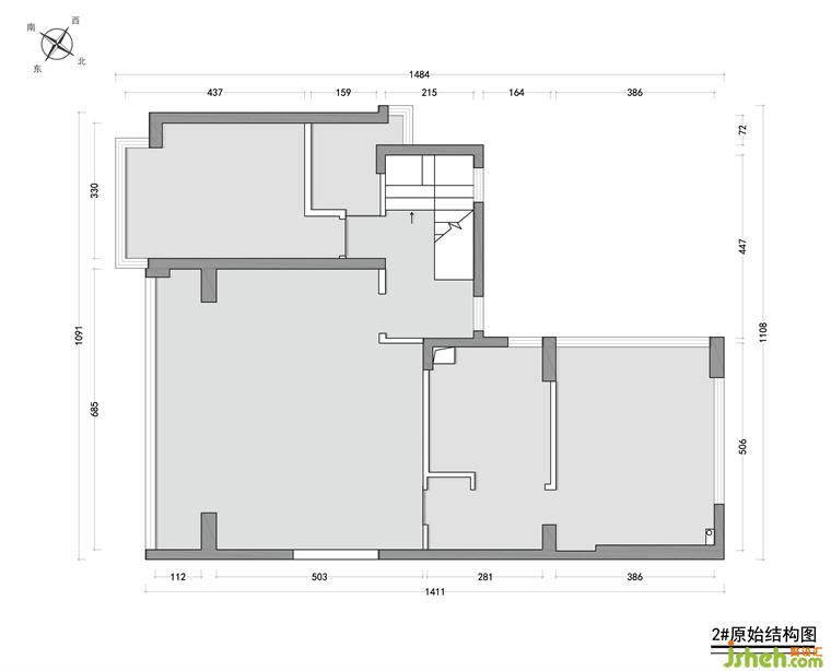
户型改造:
1、复式豪宅设计让原有的入户变得通畅敞开,开门见山景,引景入室的同时还有纷至沓来的微风。
2、原有的厨房区域打通,变成敞开式,与客餐厅相连,厨房变成大人小孩一起互动的游乐场 ,通风采光更加畅快
3、复式豪宅设计用堆满的植物将阳台半封闭,与起居室、视听区、阅读、娱乐区可开可合
4、二楼增加娱乐区,休息阅读书法都是日常兴致之事。



设计师林子:
与H姐是老朋友了,十年前我们因设计结缘,那个时候他们刚在这里安家 ,请我们做局部改造,她家公主刚出生,我们还都是20几岁青涩的小女生,记忆里的她,一直都是美的模样,轻慢的步伐,清澈的眼神,饱满的状态。之后我们就像朋友一样分享生活里的趣事,见证着对方越来越美,内在越来越充盈。这感觉真的很美妙,感谢一路走来大家的坦诚相待。十年呀,这样细水长流的缘分,好珍贵,收获一枚知心暖人的小姐姐,想想都觉得很温暖。
再次装修,使我们又欢聚在一起。H姐说:和三米设计的缘分很悠长,时间的沉淀让我们对家都有了更深入的理解。房子不光是个立方体,更是承载着家人情感诉说着生活情怀。他们在家办公时间居多,所以空间的开合、动静、三代同堂的功能需求和生活方式都被照顾到。
更多复式豪宅设计请关注聚设汇装修平台: