

阳光正好,清风微拂,自然与艺术的对话慢慢发生。空间配置中性色调为主的弧线角宽屏床,雅致的格调被艺术的笔触描摹、铺叙,使美学的体验达到最大化。金属及木质材料与床头线型灯的设计即保持优雅的调性,也让生活的情趣有了恰到好处的展现。



次卧以五彩色调为主,辅以金属点缀,特别定制的奥尔蒂斯·米兰诺元素的床屏与“酒具”元素的装饰画丰富了空间的细节,样板房设计实现了令人心安的品质理想归处。


男孩房充分考虑人物设定特点,整体色调以米色、咖色为主,空间笼罩在一派童真的格调之中,加之宇航员、火箭等物件的自然意象强化,科技感十足,弥漫着别具一格的活跃气息。

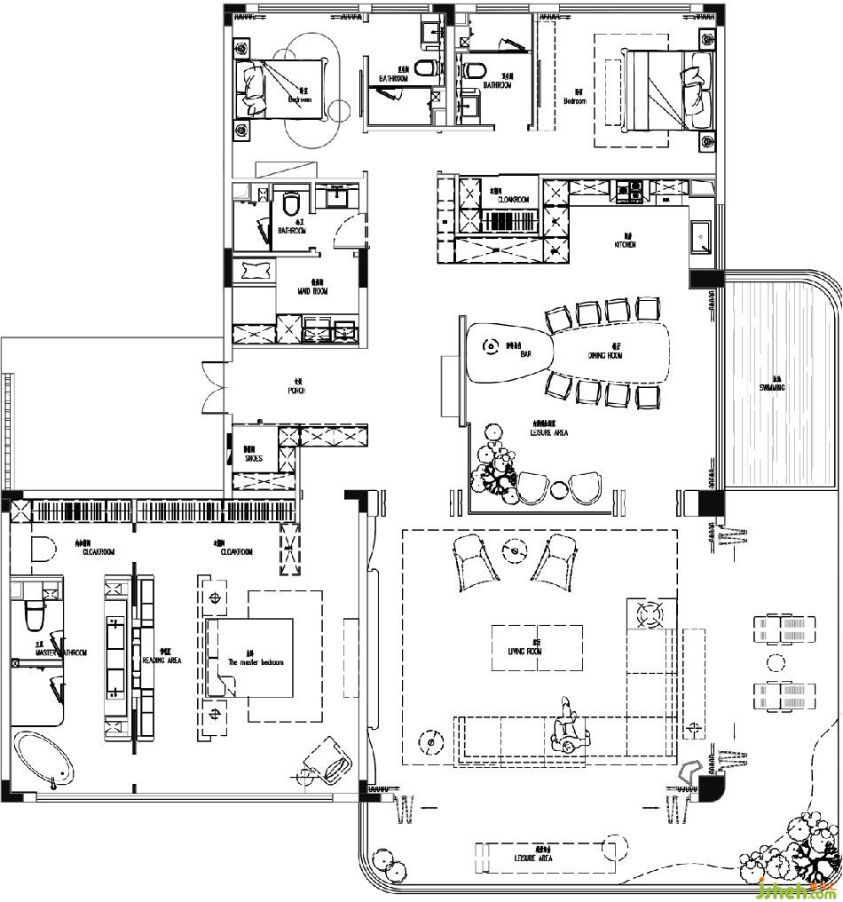
平面图
更多样板房设计请关注