欢迎光临聚设汇,装修找设计就上聚设汇!
   咨询电话:15602987227
登录    注册
聚设汇
首页 > 家装 > 翔顺城市花园

翔顺城市花园

佛山装修公司

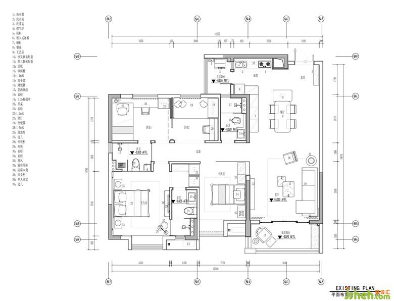
主人房舒适宽敞,简单的而富有质感的床头靠背造型突显低奢的气息,衣帽间与主浴室都有一定程度上的开放出来,佛山装修公司增加了空间感的同时又艺术了空间。两个小卧室可开可合,连通了空间的同时又连通了两间房间的人的关系。

设计是在设计体验,形式只是其中的一部分,多变的组合空间让整个房子产生了不同的生活体验,佛山装修公司把真实的生活和生活的艺术完美的结合在一起。

易思维室内设计 设计总监

设计收费:面议 元/平             

擅长类型: 餐饮,办公,家居住宅

在线咨询

扫描二维码关注我们的微信

深圳市聚设汇文化传媒有限公司
主编热线:15602987227
总部:深圳市罗湖区梨园路128号宝能汽车大楼416单元
佛山、东莞、成都、重庆、福州、厦门、南昌、武汉、
杭州、苏州、温州、郑州、长春、沈阳、贵阳、柳州、
哈尔滨、九江等城市设立办事处
© 2017-2021 Jsheh.com 版权所有 粤ICP备17079093号
展开
回到顶部