项目地址 | Address:藏珑湖上公馆
建筑面积 | Area:40平米 层高4.5米
设计风格丨Design style:现代简约
摄影机构丨Photography studio:大黄映像
设计机构 | 青凝空间设计
这是业主用来投资的一套40㎡复式公寓,去年交房后有了装修的打算。经朋友推荐了解了关于我和设计的理念。业主也很有自己的想法,通过见面交流我们达到共识。我给她规划的是既能做短租民宿也可长租,还能自住。通过Loft装修设计,节省装修成本的同时还为房子保值甚至增值。我对这次设计合作定下的小目标:满足基础的家居功能之外空间里要有一点色彩,想要一些创意的造型,或者不同材质的表达,最好还有一点光影效果,让人有想入住拍照打卡的冲动。

整个Loft装修设计中,我并没有去想我一定要做什么风格,确定了平面布局后我就会考虑立面的设计,包括材质的选择以及呼应、灯光的设计、尺寸造型的比例、家具软装的搭配等等。


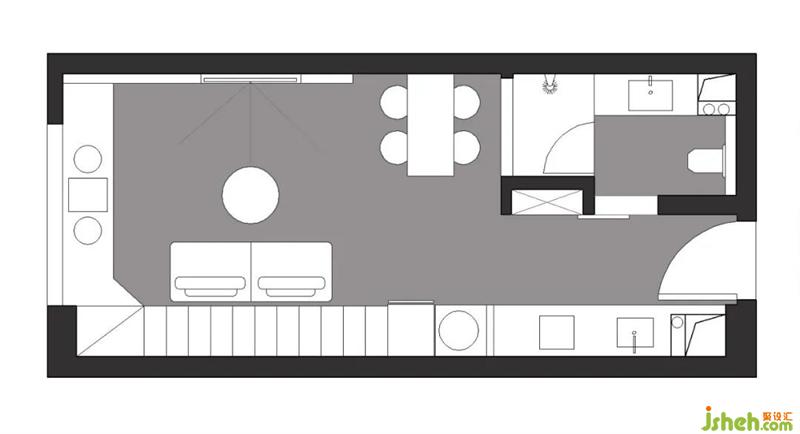
窗户位置设计了飘窗柜,Loft装修设计有了收纳的同时还可以坐在上面看看书。
进门左边我设计了橱柜楼梯下方储物柜,甚至吊柜也是做的一样深度,看上去简洁干净,极简风格最重要的就是收纳。
地面是Loft装修设计师特意选择的亚光灰砖,减少光污染。
卫生间的弧形玻璃墙也成了餐厅的墙面装饰、比挂画好看。
