欢迎光临聚设汇,装修找设计就上聚设汇!
   咨询电话:15602987227
登录    注册
聚设汇
首页 > 商业 > 栖也Habita

栖也Habita

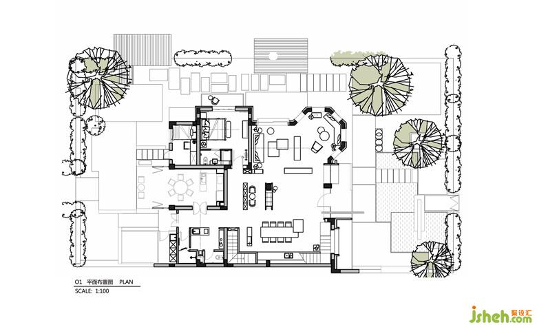
客房卧室细部

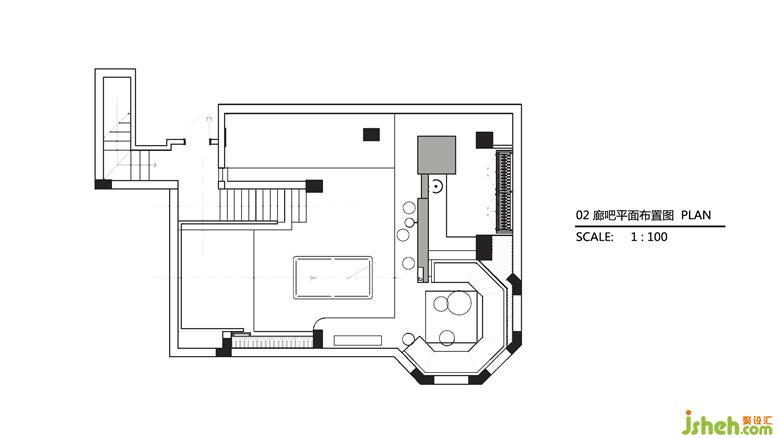
地下室为一个方形空间,把廊吧布置与地下室,提供小型聚会和娱乐的功能,室内设计师为打破原先单调的空间,顶面采用弧面系统,同时将墙面上的体块以悬浮的状态呈现,通过切割使原建筑的楼梯成为一个独立的审美体系,增加空间的趣味性。

廊吧,顶面采用弧面系统,墙面上的体块以悬浮的状态呈现

偏离设计工作室

设计收费:面议 元/平             

擅长类型: 住宅,餐厅

在线咨询

扫描二维码关注我们的微信

深圳市聚设汇文化传媒有限公司
主编热线:15602987227
总部:深圳市罗湖区梨园路128号宝能汽车大楼416单元
佛山、东莞、成都、重庆、福州、厦门、南昌、武汉、
杭州、苏州、温州、郑州、长春、沈阳、贵阳、柳州、
哈尔滨、九江等城市设立办事处
© 2017-2021 Jsheh.com 版权所有 粤ICP备17079093号
展开
回到顶部