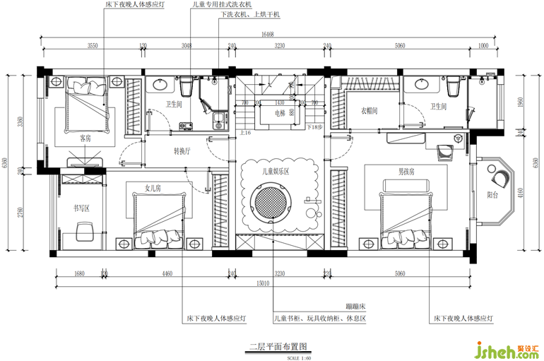
二楼是属于孩子们的娱乐天地,配置完善的私人空间做到了休闲学习两不误。公共空间则是共同的娱乐区,孩子们可以在这个空间中尽情的玩耍,编织自己那天马行空的梦想。
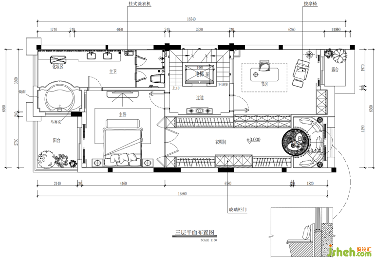
三楼是男女主人的私人空间,套房式的设计,保证了其私密性,也更大限度的满足了男女主人各自的爱好习惯。在交互上,我们也设计了靠窗的环形区域,背靠美丽的山城,男女主人能在这方独属于自己的天地中互诉衷肠。
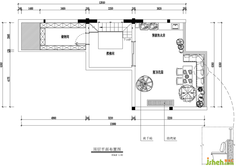
四楼为顶层,天然的公共休闲区域,设计感十足的空中花园与孩子们的独立娱乐区,大人们可以在这里安逸的闲聊品茗,孩子们也可以在这自由的玩耍,同时照顾了家中两代人的休闲娱乐。
重庆别墅设计空间上的互动交流完成,在装饰搭配上我们也为本案附上了温馨时尚的元素。从明快的中性色挑选出米色、白色、棕色、灰色、黑色。辅以简洁有力的线条结构,干净利落,与生俱来的线性美感,营造出属于自己的冬日暖阳。
整洁无杂乱的外观所呈现的质感非常令人舒适与舒心,而精致的线条搭配极具奢华感,自然氛围悄然流露,散发出空间独特的气质。




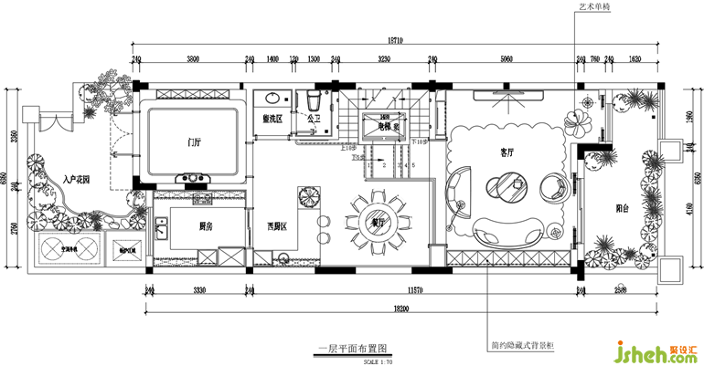
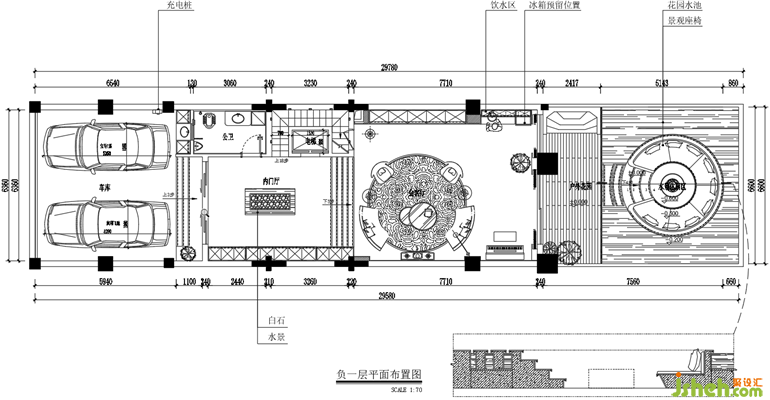
重庆别墅设计


“将设计融于人性,用细节定义奢华。”
我们一直坚信,住宅是主人性格与思想最直观的表现形式,也是我们对于重庆别墅设计的思考最直观的答卷。
而这样一所每个家庭成员都能自得其所的生活空间,便是我们设计师交予业主的答卷。




更多重庆别墅设计请关注