项目名称|绿地重庆城际空间站样板间软装工程
项目地址|重庆西站
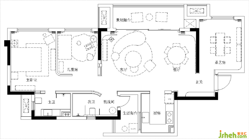
项目类别|样板间A户型
项目面积|85㎡
材质说明|石材 皮革 布艺 木作
软装方案设计师|张婧 万霞 刘昕晨 刘春燕
甲方负责人 | 绿地集团西南事业部重庆主城公司
空间摄影师|肖湘
生活的魅力所在,即是无边无际的各种可能,当室内设计离开了它的舒适区,将会浮现什么样的新视野呢?在真实的空间里,它们会谱写出什么样的故事篇章?在一个不确定但却又酝酿着预感的时刻,这些问题涌现于我们的脑海。这些珍贵而关键的问题,促使我重新构建我的创意视野,重新定义样板间的意义。最重要的是,它们推动我们去追求全新的设计语言和不寻常的表述。
本案由古驰发布《无边序曲》时装系列为灵感,窥视生活和幻想,以及私人时光。一窥生命中各种令人振奋的奇迹之窗,串联起无形与有形,串联起微不足道的事物带来的悸动 ,形成生命中的悸动不可预期。
“自然”也是空间的主题,贯穿整个场景的核心,客厅,乌克兰设计师品牌NOOM天鹅绒面料沙发椅自然的清新之绿与木色基调相结合,再加入的现代元素,就如同跳圆舞曲一样律动欢快,在自由的家居空间享受美好生活。自然的赠予省却了繁复的人为设计,这些无法人为刻画的东西成为空间最具魅力的所在。


素雅、平淡的春色中,回归生活的诗意本真,界面视觉关系的材质与配色层次完美匹配,将空间的重心转向与外部景色的交互之中。借助户型优势,设计师尽可能地利用并形成引导,规划了整个空间的动线走向、功能分布及材质关系。

