项目名称|新鸥鹏•九州唐樾
项目地址|江西•上饶
项目类别|B1样板间
项目面积|288m²
设计风格|混搭
竣工时间|2020年
材质说明|香雪梅石材、劳仑黑金石材、木饰面、钛金亮光不锈钢、墙纸、硬包
硬装方案设计师|庞一飞、袁毅、邓剑平
软装方案设计师|张婧、秦弦
空间摄影师|相形空间
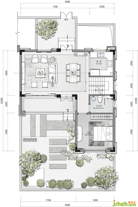
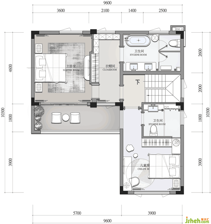
▲ 1F ▲
▲ 2F ▲
▲ 夹层 ▲
▲ -1F ▲
艺术的发展始终在提供新的感觉,创造新的媒介。
家不单只是一个供人住栖的盒子,那些理性或感性,淡然或狂野的风格都或多或少让家成就无二的期许。

生活的每一件经过,我们爱以文字、图片,乃至某种物件来记录,只因那些曾经失去的光阴中,总有「留存的意义」。
留存至今的古典艺术,其独特的工艺与结构是此次设计的灵感之源。步入门厅,奇异的饰物增强了视觉的第一感,设计将玻璃、黄铜和石材结合在一起,呈现一派“狂野野兽”的格调。


野而趣的维度将“野兽与花园”之态融入空间,随性不乏性感。角落一隅豹纹的靠椅,或是壁龛的锤目纹金属小件与褐纹大理石,均滋生着感性的生长。
炎炎夏日,室外绿树如盖,知了喧天,室内温情敝屣。下沉式庭院并无其他物体填充,做减法的设计在满足功能的同时兼具视线所及的美感,单一套座椅,便能满足居住者休闲的需求。