一进门,合理的空间分配,别致的装饰鞋柜,使用起来非常方便。
入户玄关处,首先映入眼帘的则是一副抽象挂画,低调别致,展现空间格调。棕色矮柜既是储物柜也是展示柜,将装饰品一一演绎。
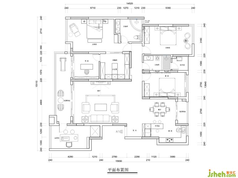
客厅在布置上比较简洁,电视背景墙以白、咖两色为墙面主要颜色,地面用质感极强的深色瓷砖,展现港式的前卫时尚。
软装配饰在空间上起到了很大的作用,简洁的沙发背景,不同色的抱枕和绿植,让整个客厅不会显得单调。总体上给人一种自然简洁,和谐宽敞的感觉。
桂林豪宅设计全墙面式的木质酒柜,浅色简约餐桌和双色餐椅搭配,让人不自觉地感觉到了一股现代轻奢风在空间碰撞交响。
与主卧的温柔、简洁相比,次卧则稍显活泼,以深咖作为空间的点亮点,减少空间单调感。午后小憩看看郡府园林式的景观也是非常之惬意的。



更多桂林豪宅设计请关注