Style:深圳家居设计:新中式
House Type:四室两厅
Service Pattern:全案设计
Project Address:南山· 雍景湾
Area:150m²
Completion:2020
Design Agency:道和全案空间设计
中式风韵,是传统文化和现代理念的碰撞和融合,也是文化自信和精神涵养的一种表达。
既追求东方意境之美,同时不乏现代时尚元素,设计师延展中式风格,打造人文雅致、安然舒适的传统居室空间。
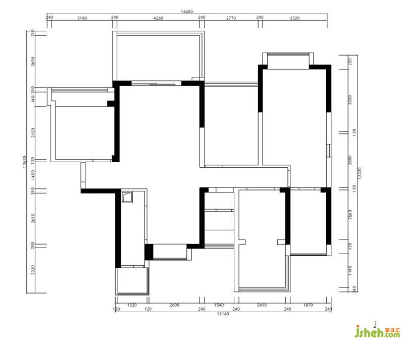
△ 原户型
△ 平面图
设计师说:
1、客户为一家3口,偏向通透又不沉闷的中式风格,喜欢新中式的家具又不希望家里做的中式老气,所以我们在设计中加入了许些时尚元素。
2、结构方面,厨房面积不大,占用了餐厅面积,餐厅相对说比较小,所以我们把生活阳台取消,并入厨房,面积不大相当于是中厨,所以冰箱和高柜也放出来了,和餐厅一个整体,这样餐厅显得大很多。
3、主人房的房门正大门,设计师专门做了一个独立衣帽间,和卫生间连成一体,避免卫生间的门正对着主卧的床

全屋木饰面,质感细腻温润,做为起承转合的背景色柔和而不张扬,大地色系作为主调将居室格调渲染得更为温暖雅致。
整体空间布局井然有序,传达着中式对称之美,良好的采光让空间更加通透明亮。


艺术出于自然,而高于自然,带着对人文山水的体悟与沉淀取其意,演其境,用其韵,将诗意驻留在空间,传递着内敛的情怀,涤荡出岁月的光华。

玄关尽可能多的量体储藏,以三分露七分藏的原则、以不对称的手法、以黑白灰木的配色,满足更多生活需求、重塑新的动线关系。
移步餐厅,墙面搭配大面积的黑板,随手小记,冰箱贴画,使空间更具温馨感。

