欢迎光临聚设汇,装修找设计就上聚设汇!
   咨询电话:15602987227
登录    注册
聚设汇
首页 > 家装 > 木子仁家装设计 | 璞誉府

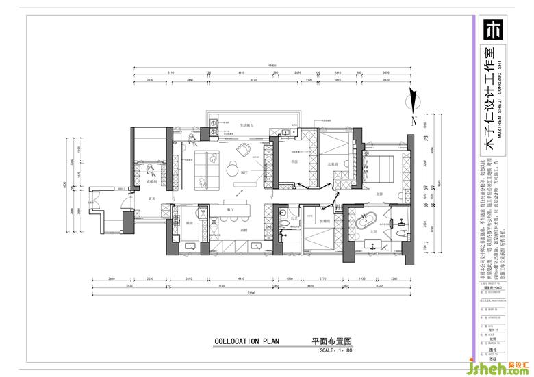
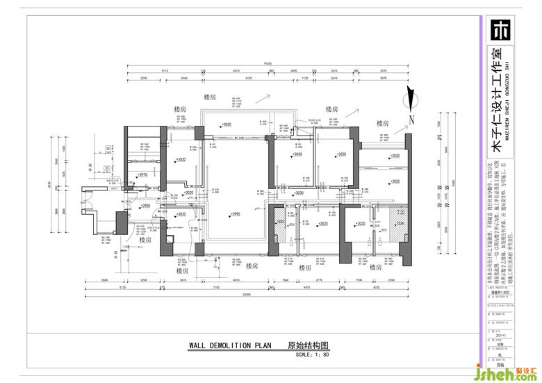
木子仁家装设计 | 璞誉府

保持温和平静,粉色墙面所产生的趣味性,营造出舒缓的松弛感。家装设计咖色木饰面为空间注入一抹稳重感,调和空间基调

次卫

卫生间同样沿袭了整个空间的氛围基调。

更多家装设计请关注聚设汇装修平台:

木子仁室内设计事务所创始人/首席設計師

设计收费:800-1000 元/平             

擅长类型: 家装,豪宅,别墅

在线咨询

扫描二维码关注我们的微信

深圳市聚设汇文化传媒有限公司
主编热线:15602987227
总部:深圳市罗湖区梨园路128号宝能汽车大楼416单元
佛山、东莞、成都、重庆、福州、厦门、南昌、武汉、
杭州、苏州、温州、郑州、长春、沈阳、贵阳、柳州、
哈尔滨、九江等城市设立办事处
© 2017-2021 Jsheh.com 版权所有 粤ICP备17079093号
展开
回到顶部