


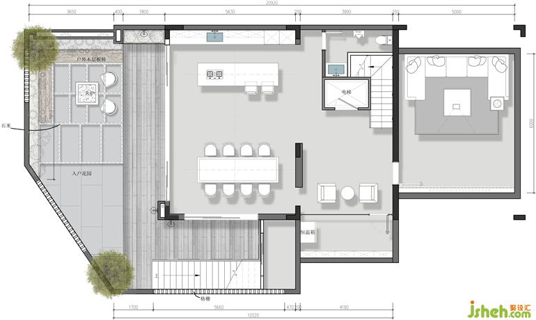
负一层为主人接待友人和家庭娱乐的空间,开放式的西厨与用餐区形成很好的社交属性,并穿插天花天然木纹的质感表达,佛山保利云上别墅装修设计让餐厨空间自成一体,深浅色块的碰撞让空间不止是使用,而是另一种视觉的享受。

餐厨区与户外花园相连,下沉式花园设计可以让采光最大化地引入到负一层室内,户外绿植与自然环境相映成趣,户外木板凳与花池连成一体,错落有致。室内室外边界模糊,内外延伸,引景入室,佛山保利云上别墅装修设计师认为,这就是展现室内建筑最好的姿态。

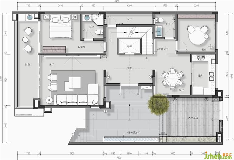
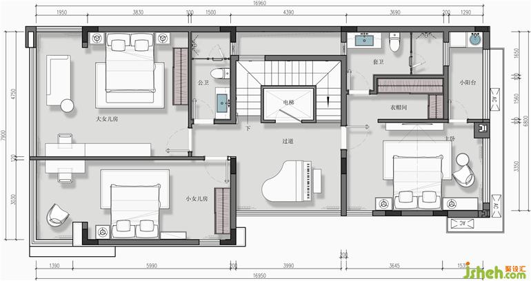
MARK DESIGN团队对设计有着广阔的视野,他们的室内设计展示了兼收并蓄的现代主义风格,他们相信,生活空间应该反应了客户和环境的独一无二性,佛山保利云上别墅装修设计通过精致的设计方法形成一种注重细节和实质的风格体系。


更多佛山保利云上别墅装修设计请关注聚设汇装修平台: