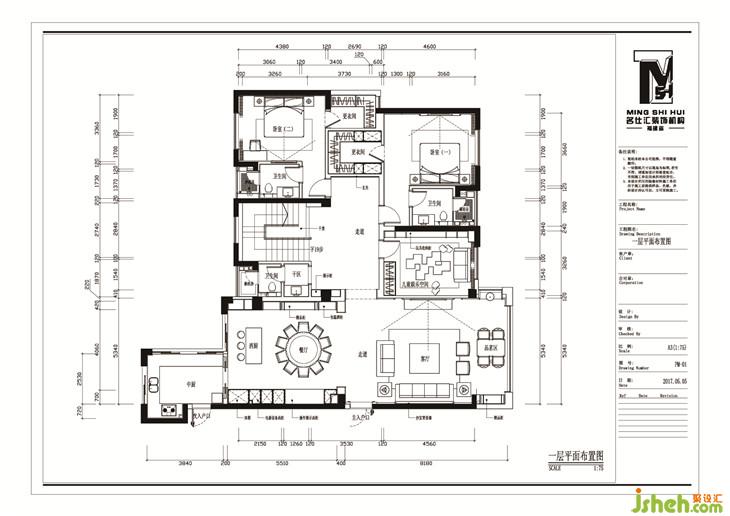
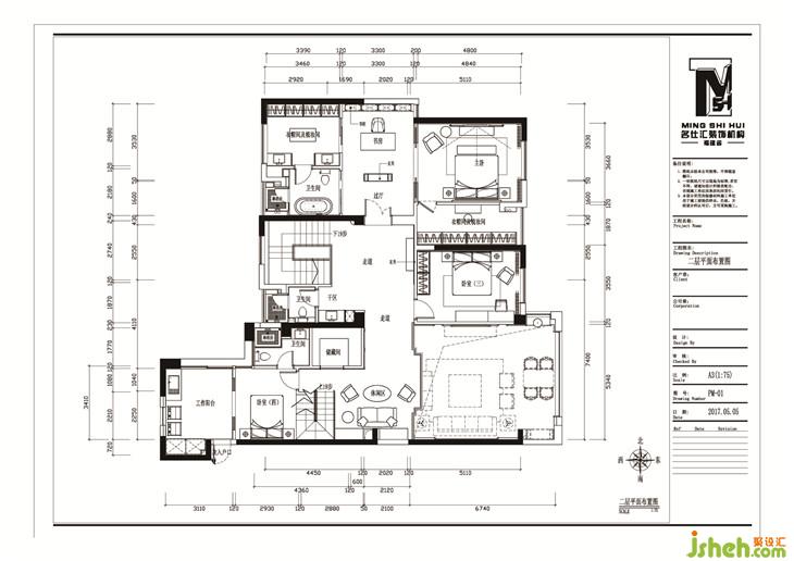
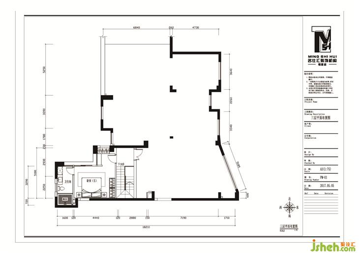
室内设计师

为了让软硬装和谐统一,本案设计师李迅先生,在硬装空间的塑造阶段,非常关注造型细节的设计,与后期家具调性和材质的呼应。精选在视觉和触感上,与家具设计元素,衔接性强的珍贵木材,并创造性地运用真丝、亚麻、羊绒等珍贵面料,和黄铜等贵重金属饰条,搭配质感晶润的大理石、进口砖等材质,升华空间的精致度,使软硬装完美融合,互相成就,将整个空间塑造成集奢华与高质感于一体的艺术品。
李迅先生说:“我们要做永恒的空间,我们并非是做简单的设计,而是把每一个项目都当做艺术品去完成,无论多久,这个空间都能体现其时代性。”李迅先生对经典、细节、品质、情感的艺术追求,也正是他对每一个作品的诠释,无论在美学层面,还是品质范畴,都经得起最挑剔的目光检验。

