欢迎光临聚设汇,装修找设计就上聚设汇!
   咨询电话:15602987227
登录    注册
聚设汇
首页 > 商业 > 武汉丹青宴餐厅设计-书画入席,丹青行

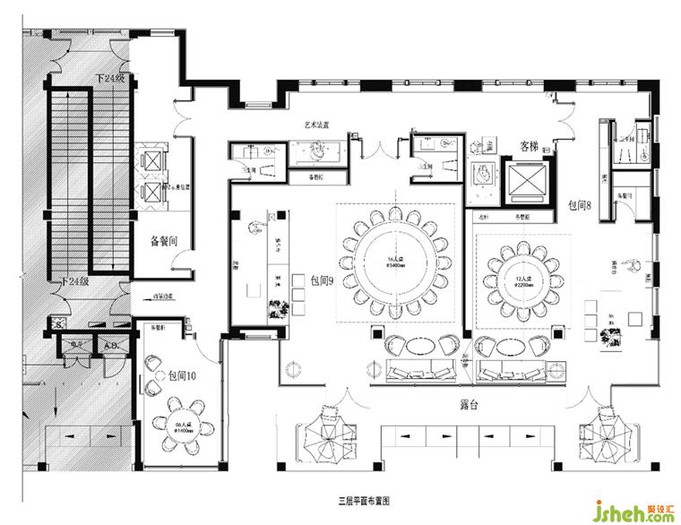
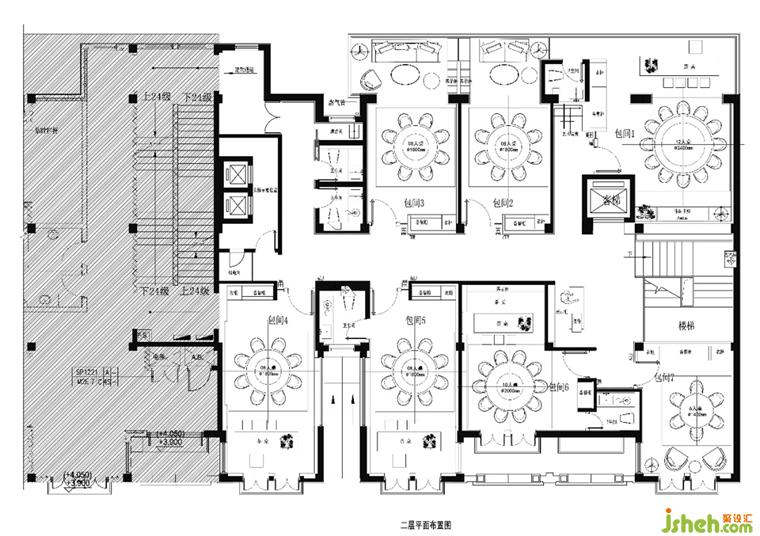
武汉丹青宴餐厅设计-书画入席,丹青行

LDH DESIGN 以丹青的色彩符号解构,延展出对古今武汉的文化存续流传,餐厅设计以当代的“体验感”设计语言传达出本土文化内涵,重写品牌创新和挖掘品牌活力。在传统与革新中寻求新时代下的突破点,用包容并蓄的结构语言和沉稳典雅的色彩构成打造本土语境下的场景活力与空间魅力;人与人,空间与场景,味蕾与心境的变幻流动中迸发出对新生活和新记忆的描摹想象。

更多餐厅设计请关注聚设汇装修平台:

LDH DESIGN 刘道华建筑设计事务所

设计收费:1500 元/平             

擅长类型: 餐厅设计

在线咨询

扫描二维码关注我们的微信

深圳市聚设汇文化传媒有限公司
主编热线:15602987227
总部:深圳市罗湖区梨园路128号宝能汽车大楼416单元
佛山、东莞、成都、重庆、福州、厦门、南昌、武汉、
杭州、苏州、温州、郑州、长春、沈阳、贵阳、柳州、
哈尔滨、九江等城市设立办事处
© 2017-2021 Jsheh.com 版权所有 粤ICP备17079093号
展开
回到顶部