项目名称/Type: 儿科医疗诊所
项目面积/Area:700平方
设计风格/Style: 现代风格
项目地址/Address: 深圳荣超大厦
设计机构/Design agency: 深圳市熠森设计有限公司
本案是一家国内专业儿童诊疗机构,重点针对0到3岁的儿童还不会自我表达病情的情况下,为年轻家长们在孩子成长的过程中,提供咨询、诊断、评估、治疗、对接的服务。
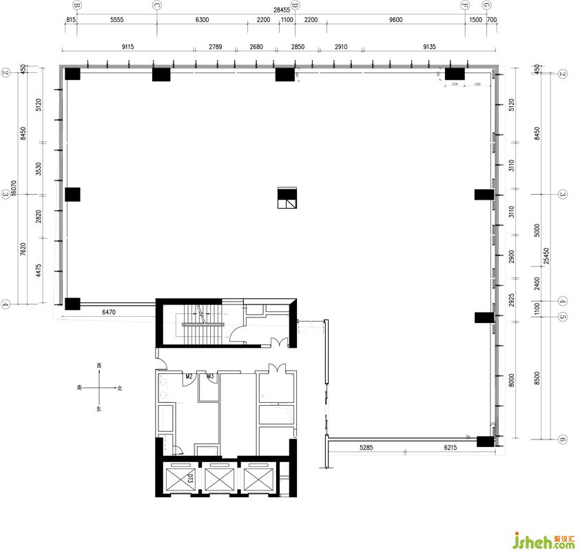
平面布置图
赏心悦目·大厅
(大厅及导诊区)
在有限的700平米的空间里,为了消除儿童对医院的那种心理抗拒与恐惧,我们把很大部分空间设计成儿童娱乐空间,结合医疗行业的特性,设计了儿童喜欢的多种艳丽颜色与趣味造型,儿童一眼就喜欢,并让他们通过爬行与玩耍,来放松儿童就诊前的不安心情。儿童医院设计
活动区的弧形书架、彩色地胶、弧形可爱的家私小品与玩具,都为家长与儿童带来不一样的快乐;

依据场地原始层高不高,梁位复杂,及墙面整体为大面落地窗,特把天花进行分层、弧形处理,并以多个圆形相接,变成蓝色天空的感觉,圆形顶的星球壁纸更凸显了天空的存在感;
大厅中间一个8字弧形综合服务导台,让护士能从各个角度注意到前来就诊的家长与正在玩耍的小朋友们,在服务导台的周边还设置了休息区,让候诊的家长们享受到最贴心的服务。儿童医院设计
旁边医生的诊室、雾化室、处置室、化验室、药房等区,都围在服务导台四周,护士均能很好地协助医生和服务候诊的家长和孩子们。儿童医院设计
时 尚 · 童 趣
(儿童娱乐区)
依据儿童的身体发育阶段,我们设有不同年龄的活动区域,让孩子们能找到适合自己玩耍空间;
灵动的色彩,满满的阳光从窗外洒进来,温暖着孩子们的童心......
充满童趣的地方让孩子们不再紧张、恐惧、害怕!反而是欣喜、开心、快乐和配合!
