欢迎光临聚设汇,装修找设计就上聚设汇!
   咨询电话:15602987227
登录    注册
聚设汇
首页 > 家装 > 300㎡中赢星际豪宅设计,我们在秩序中寻找永恒的变化

300㎡中赢星际豪宅设计,我们在秩序中寻找永恒的变化

▼ 厨餐厅 - 厨房

主卧  |  Bedroom

卧室风格延续了整体大气沉稳的气质,两个独立的卧室套间带来了最舒适的生活品质。中赢星际豪宅设计空间规划中,专门为客餐厅开辟的公卫杜绝了不必要的打扰,保证后厅休憩空间的私密性。

▼ 主卫配有有独立的镜面梳妆台

次卧  |  Secondary Bedroom

▼ 衣帽间

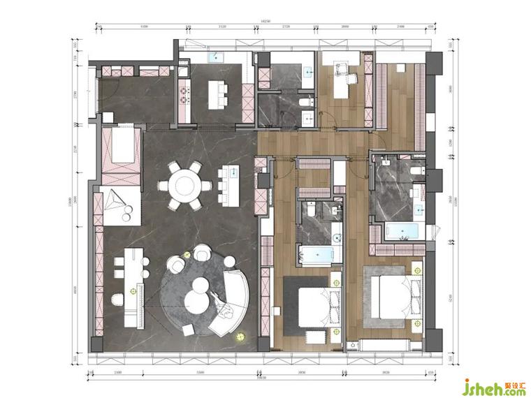
户型图  |  Plan

更多中赢星际豪宅设计请关注聚设汇装修平台:

力设计

设计收费:面议 元/平             

擅长类型: 家居住宅,别墅,酒店

在线咨询

扫描二维码关注我们的微信

深圳市聚设汇文化传媒有限公司
主编热线:15602987227
总部:深圳市罗湖区梨园路128号宝能汽车大楼416单元
佛山、东莞、成都、重庆、福州、厦门、南昌、武汉、
杭州、苏州、温州、郑州、长春、沈阳、贵阳、柳州、
哈尔滨、九江等城市设立办事处
© 2017-2021 Jsheh.com 版权所有 粤ICP备17079093号
展开
回到顶部