欢迎光临聚设汇,装修找设计就上聚设汇!
   咨询电话:15602987227
登录    注册
聚设汇
首页 > 家装 > 杭州绿野春天别墅装饰设计:城市“度假屋”

杭州绿野春天别墅装饰设计:城市“度假屋”

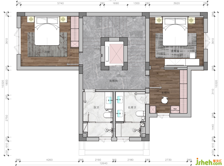
户型图  |  Plan

有感:

非常愉快的一次全案合作

从平面,定稿到施工

这次设计之旅一路走来都十分顺利

希望这座城市“度假屋”

能陪伴他们度过无数未来的美好瞬间

更多杭州绿野春天别墅装饰设计请关注聚设汇装修平台:

力设计

设计收费:面议 元/平             

擅长类型: 家居住宅,别墅,酒店

在线咨询

扫描二维码关注我们的微信

深圳市聚设汇文化传媒有限公司
主编热线:15602987227
总部:深圳市罗湖区梨园路128号宝能汽车大楼416单元
佛山、东莞、成都、重庆、福州、厦门、南昌、武汉、
杭州、苏州、温州、郑州、长春、沈阳、贵阳、柳州、
哈尔滨、九江等城市设立办事处
© 2017-2021 Jsheh.com 版权所有 粤ICP备17079093号
展开
回到顶部