欢迎光临聚设汇,装修找设计就上聚设汇!
   咨询电话:15602987227
登录    注册
聚设汇
首页 > 家装 > 杭州绿地华家池印装修设计:俯瞰华家池,现代顶跃住宅的大胆解构

杭州绿地华家池印装修设计:俯瞰华家池,现代顶跃住宅的大胆解构

▼ 长辈房

▼ 儿童房

起居室  |  Leisure Area


有感:

在3月姗姗来迟的毕业照拍摄之前

2023年的新春伊始

本案的业主已经顺利入住

并拍摄了许多温馨而美好的生活记录

前期设计过程中顺畅的沟通

与客户的绝对信任给了我们最大的发挥空间

杭州绿地华家池印装修设计在有限的结构中实现更合理的空间规划

与对现代住宅设计的美好畅想~

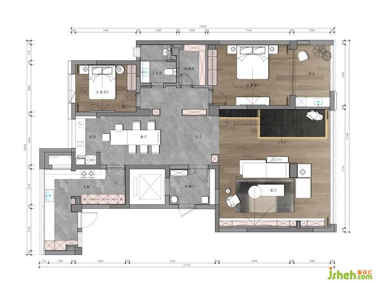
户型图  |  Plan

更多杭州绿地华家池印装修设计请关注:

力设计

设计收费:面议 元/平             

擅长类型: 家居住宅,别墅,酒店

在线咨询

扫描二维码关注我们的微信

深圳市聚设汇文化传媒有限公司
主编热线:15602987227
总部:深圳市罗湖区梨园路128号宝能汽车大楼416单元
佛山、东莞、成都、重庆、福州、厦门、南昌、武汉、
杭州、苏州、温州、郑州、长春、沈阳、贵阳、柳州、
哈尔滨、九江等城市设立办事处
© 2017-2021 Jsheh.com 版权所有 粤ICP备17079093号
展开
回到顶部