项目地址 / 海南 · 三亚
Location / Hainan · Sanya
项目类别 / 全案委托
Project Types /Total Solution
毕业时间 / 2021 . 06
Finish Time / Jun. 2021
设计团队 / 力设计
Design Team / Li Design
摄影 / 林峰
Photographer / Lin Feng
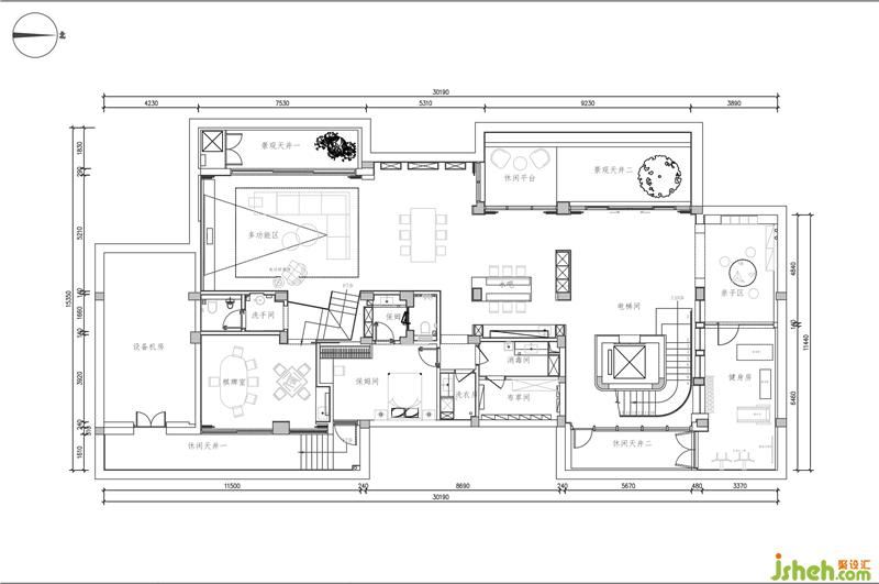
户型图
Plan
-1F平面布置图
1F平面布置图
2F平面布置图
关于设计:三亚位于海南岛最南端,是中国最南部的热带滨海旅游城市,是中国空气质量最好的城市;接到这个案子后,设计师与业主一家进行多次沟通,深刻体会业主的深度诉求。三亚别墅装饰让每个走进这栋别墅的人都能够感受到主人知性的品味,也同时让业主拥有一栋带有个人气质,属于自己内心的别墅。
花园
Garden





海南北纬 18° 线,它把夏威夷 、加勒比海 、迈阿密等度假胜地串联起来,而在中国,北纬18°穿过的也正是度假胜地 —— 三亚。
玄关
The Entryway
楼梯
