项目地址 / 杭州 · 私宅
毕业时间 / 2020 . 07
设计团队 / 力设计
"心外无物,闲看庭前花开花落;去留无意,漫随天外云卷云舒 "
——《幽窗小记》
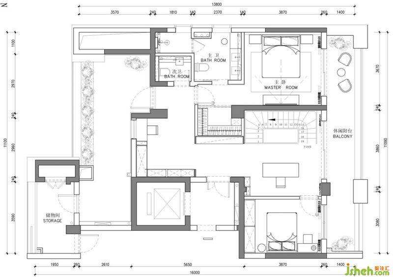
平面布置图
一层 ▲
二层 ▲
华家池印地处城市中芯,然居住之人并未汲取这繁华都市的热燥,反而修炼了一颗恬淡悠然、杭州室内设计师达观入世的心境。在朋友那耳闻了力设计,于是便有了这一卷现代与传统共融的生活画面。




楼梯在一个空间的存在常常不仅是因为功能,艺术涂料的楼梯扶手蜿蜒而上,为开敞的客餐厅添加了一处自然和谐的室内景观,使整个空间充满了灵动。


