项目地址 / 杭州 · 私宅
毕业时间 / 2020 . 10
设计团队 / 力设计
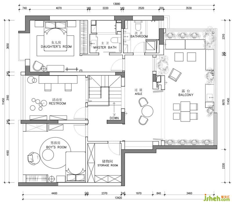
户型图
Plan
一层平面布置图
二层平面布置图
关于设计:这是一个幸福的四口之家,原始的配套楼梯位置既不合理又非常陡峭,对于身高和颜值同比高的一家来说,非常不方便,设计师在反复推敲之后,极大的实现了美学和功能的完美结合。
客厅
Living room







开放式的空间布局纳入更多自然清气,空间通透而明亮,大面积的白色作为基底,杭州装修设计配以原木地板及棕色皮质家具来丰富空间的质感,充满活力的蓝色点缀其中,搭配去繁从简的留白艺术,可以大大满足城市人对于自然生活的期待。