项目设计:李萍
设计公司:兆石设计
房 型:别墅 250平米
设计风格:简约现代
工程造价:1000/平米
用材: 博德瓷砖、东方邦太橱柜、科勒卫浴、唐朝楼梯、汉斯格雅卫浴、TATA木门。


家是心灵的港湾,随着人们在旅游中感受到简约的魅力,’简约而不简单的装饰风格。业主冯女士对细节要求很高,从选设计师到设计、施工、材料的选择都是自己不断用心对比寻找合适自己的需求;本案整天采用中性色调,稳重,大气,却又不失品味,有令人眼前一亮的感觉,最重要的是强调功能性设计,线条简约流畅,柜体、楼梯木跟整个空间色彩对比强烈,这是现代家具的特点,使用茶镜、条纹壁纸大理石等材料为辅材,也是现代风格家居风格的主要装修材料,能给人带来现代、时尚、大气的感觉。
跟业主有效的沟通后,设计师把设计做出不是简单的‘堆砌’和平淡的‘摆放’每个灯饰,配饰,家具都凝结着设计师的独具匠心,即美观有实用。

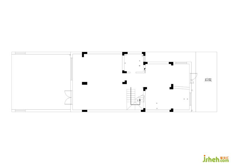
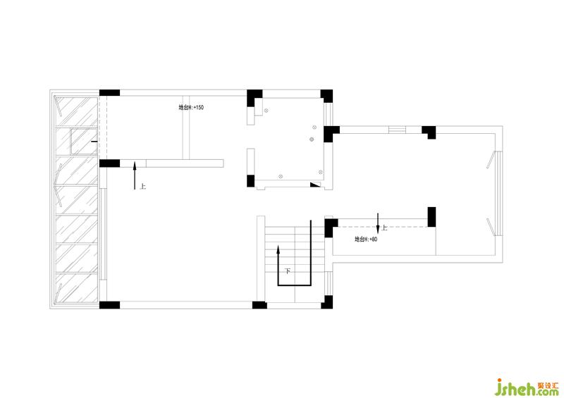
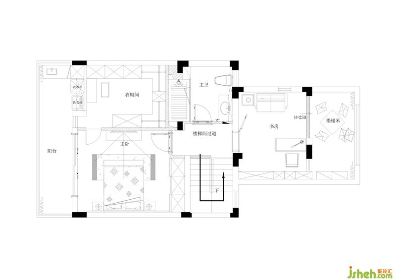
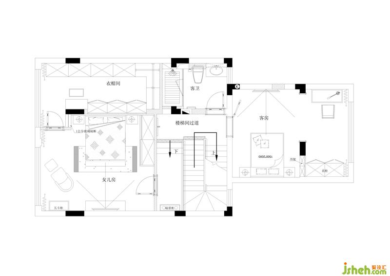
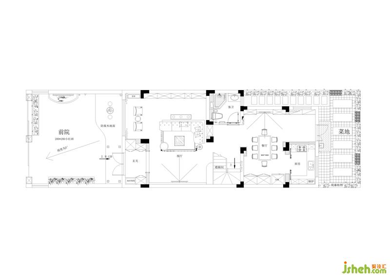
图纸说明:

一层客厅空间比较大,所以不能按照普通住宅的布局去摆放家具,将沙发组朝东摆放在中部可以很好的平衡空间;
入户门处的柱子位置有些碍事,设计师通过增加玄关功能,别墅装饰设计完美解决了这个问题,无形中也增加了生活的仪式感;
利用客厅西面墙凸出的承重柱做一组嵌入式装饰柜,提供储物功能;

二层楼梯南边的空间是下沉的,如果保留原有的下沉楼梯势必会将一个大空间“拦腰斩断”,为避免这个局面,设计师将原有的下沉楼梯封掉,改在东边,介于南面空间和楼梯之间,这样就保持了南边空间的整体性;利用阳台和承重墙把空间隔成成女儿房和衣帽间,形成套间;

三层作为主卧大套间,需要满足多种功能的空间布局。楼梯右侧的大房间可以作为主卧和衣帽间,缩小东面主卧的宽度,扩大西面衣帽间的面积,并且堵上衣帽间通向阳台的门洞,将移门开在原主卧窗户的地方,拉近主卧和户外的联系。封闭卫生间和衣帽间北面的门,将卫生间的门开在楼梯间过道是为了避免衣帽间免受卫生间的潮湿和味道的影响;