欢迎光临聚设汇,装修找设计就上聚设汇!
   咨询电话:15602987227
登录    注册
聚设汇
首页 > 家装 > 中航城别墅设计

中航城别墅设计

别墅设计

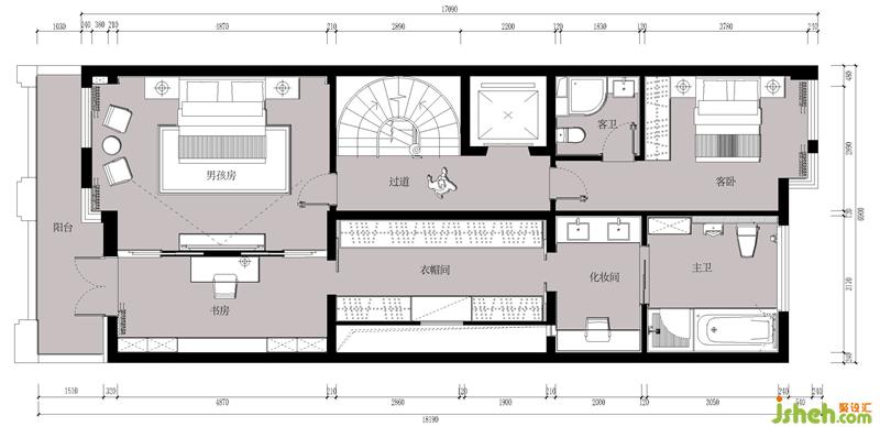
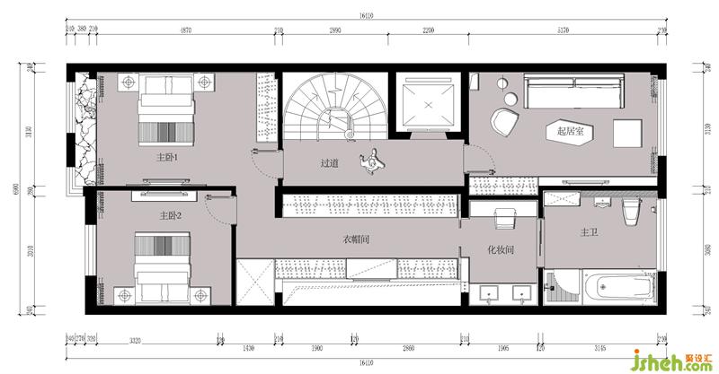
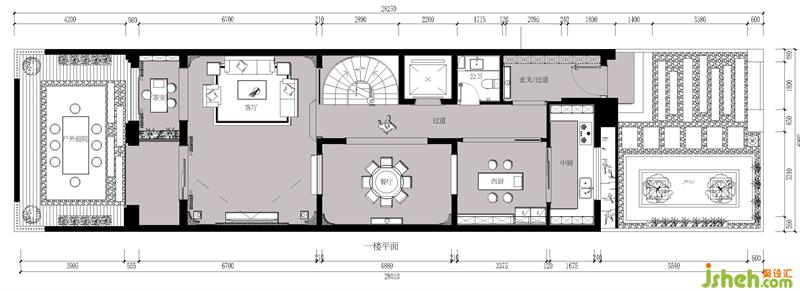
我们希望通过设计,在家的定调上多一些创想与新意,实现不同生活意趣的回归,无论是寻回东方的雅致清逸,还是归心现代的优雅都会,提供给人一个高度契合自身生活方式的家。

更多别墅设计请关注聚设汇装修平台:

设计收费:面议 元/平             

擅长类型: 现代,田园,欧式,古典,美式,混搭

在线咨询

扫描二维码关注我们的微信

深圳市聚设汇文化传媒有限公司
主编热线:15602987227
总部:深圳市罗湖区梨园路128号宝能汽车大楼416单元
佛山、东莞、成都、重庆、福州、厦门、南昌、武汉、
杭州、苏州、温州、郑州、长春、沈阳、贵阳、柳州、
哈尔滨、九江等城市设立办事处
© 2017-2021 Jsheh.com 版权所有 粤ICP备17079093号
展开
回到顶部