欢迎光临聚设汇,装修找设计就上聚设汇!
   咨询电话:15602987227
登录    注册
聚设汇
首页 > 商业 > 深圳术妍美美容会所设计

深圳术妍美美容会所设计

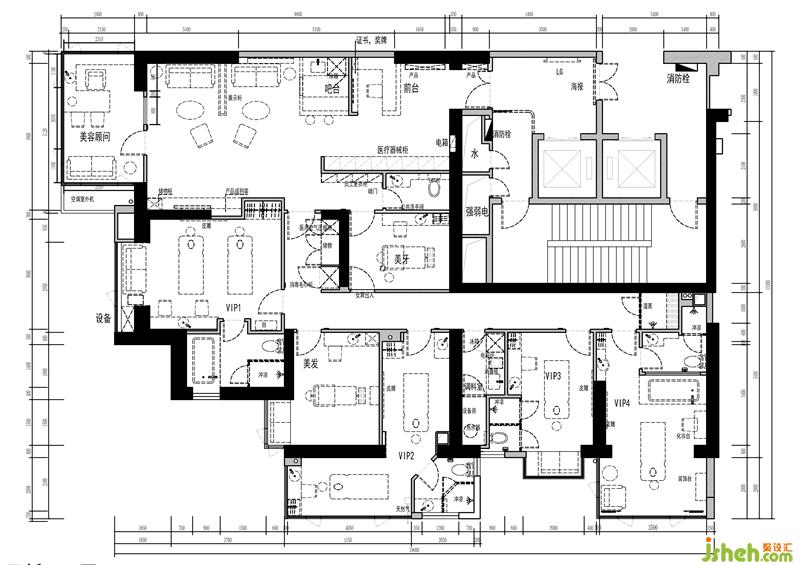
几个VIP各具特色,满足不同客户的消费需要。VIP内房中央的超级美容床是主角 ,地面是防水木地板,天花是轻奢装饰灯和可变色灯带,墙面进口墙布质感奢华而不高调,化妆台、化妆镜、壁灯高雅别致。通过不同的灯光变化营造出各具特色的SPA气氛。 超级VIP内花瓣浴更是让顾客享受五星酒店SPA的尊贵服务。

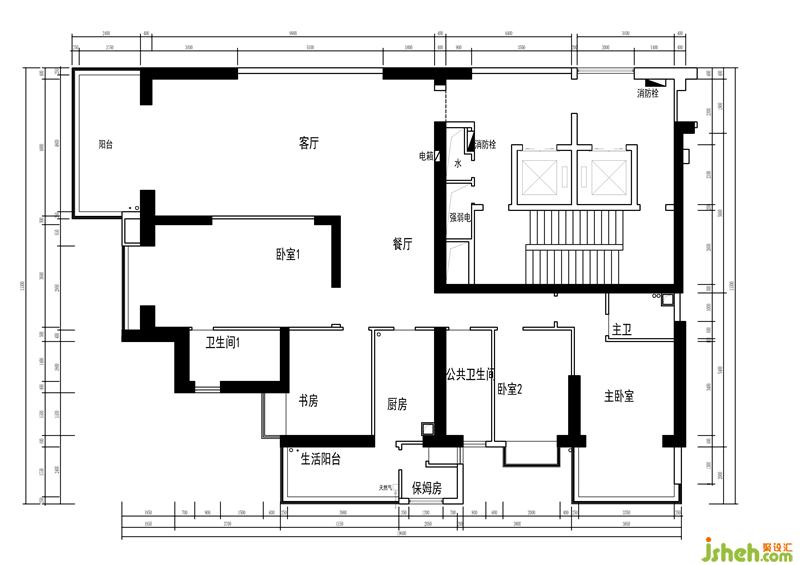
平面图:

原始结构图

平面布置图

更多深圳美容会所设计请关注聚设汇装修平台:

深圳洪约瑟空间环境灯光设计有限公司

设计收费:300 元/平             

擅长类型: 豪宅,别墅,SPA

在线咨询

扫描二维码关注我们的微信

深圳市聚设汇文化传媒有限公司
主编热线:15602987227
总部:深圳市罗湖区梨园路128号宝能汽车大楼416单元
佛山、东莞、成都、重庆、福州、厦门、南昌、武汉、
杭州、苏州、温州、郑州、长春、沈阳、贵阳、柳州、
哈尔滨、九江等城市设立办事处
© 2017-2021 Jsheh.com 版权所有 粤ICP备17079093号
展开
回到顶部