深度洽谈区则通过空间的区隔带来更多私密性,又通过落地窗和水纹肌理的隔门保证小空间内的敞亮。拥有着海洋、潮水、鹅卵石意象的沙发 ,在柔软的边界中仍然保持着一定的挺阔质地,与金属材质的微微衬高的圆盘底座相对比,描绘出理性优雅、精致坚实并存的理想人生。

样板房设计透明轻盈的顶部吊灯,隐隐透着儿时婴儿床头所挂玩具灯的影子,区域内较为疏松的家具单品,释放出感官的轻松,熊猫雕塑与室外空间中的另一只相呼应,仿佛在诉说一个“熊猫到此一游”的故事。将空间归还给孩童的本性,让玩耍与童趣更加纯粹。
奢而不华
设计畅享生活

空间是意象的巡游场
地下一层融合游泳健身、瑜伽冥想、魅力击剑的社区生活主题,设计师充分考虑了实用性、功能性和开放性,将充足的阳光迎入室内,让下沉式庭院与地下一层核心区域接洽,还宽敞、明亮于运动场域,打造舒适休闲的健康人生。


理性与温暖他同时交织在瑜伽室内,木面的储物柜,镶嵌的暖光灯正适合用来冥想的空间,如出现在模糊虚影的思绪中,一道点亮你思维海洋的安稳光线。
如日月般的艺术品被设计成空间意识的锚点,在不知不觉中牵引你游向彼岸。形如月般的灰色底盘,翻折出水纹,映射波澜晃动间的点点光斑。一种东方哲学意境,在当代设计语义下却丝毫未见魅力,相互生出一种创造性的美的平衡。
设计师提取自然元素,用“光合影”再塑轻盈、多元、年轻的轻艺术奢享社区,将对艺术的审美体验融入日常,创新并鼓励独特的当代潮流新生活。
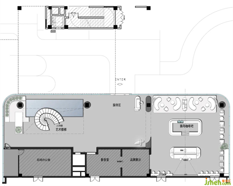
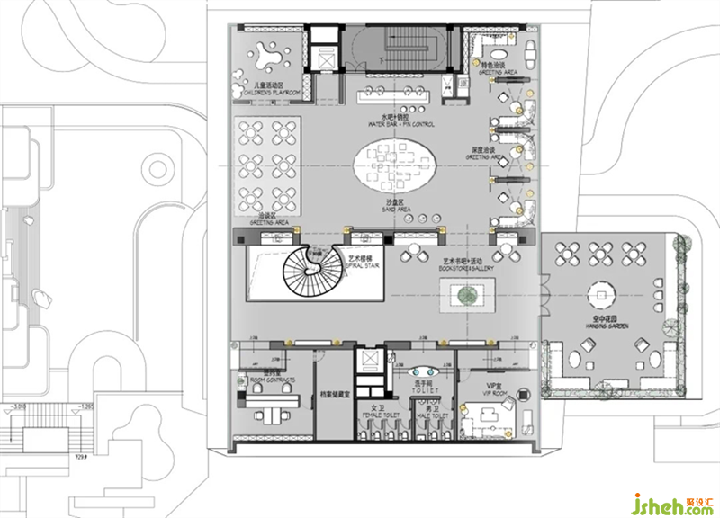
平面图


更多样板房设计请关注聚设汇装修平台