项目名称:现代时尚的新中式
项目地址:广东肇庆
设计师:梁玉华
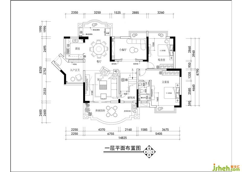
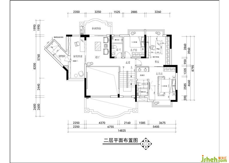
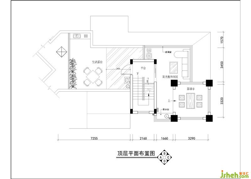
本项目面积为270方三层复式中空大厅户型。风格定为现代时尚的新中式风。业主为职业教师,对美艳的新中式风尤为喜爱,设计时在现代时尚的手法上仅在意境上体现着简约中式的表达方式,让人既享受到时尚的优雅,又感受到中式意境之韵,格调显贵。本案例运用了大自然的天然石材-白金沙,该石材无论色泽或是纹理都浑然天成,一气呵成,大气灰宏,给人视觉冲击甚为之高。整体空间均辅以奢华为代表的玫瑰金不锈钢为装饰线条,提升出时尚而奢华的空间氛围和品位,两侧6米高的不锈钢造型屏风以斜角45度为摆向,正如展示着主人趟开双臂欢迎宾客一般,热情,友爱,无比活跃。沙发背景墙面留白的处理,中间镶嵌了一个整圆以美伦美奂的不锈钢为边,透着抽象的高低起伏的山群玻璃造型,正如每逢月圆人团圆的意境,更是增添了一份中式的神韵在此。室内设计师






室内设计师
