生活需要一些仪式感,尤其是一睁开眼就能看到的地方,更值得花些巧心思。别墅改造设计卧室整体为低饱和配色与自然的原木色搭配,没有强冲击力的颜色,低饱和度的色彩让空间更具自然舒适感,长时间居住视觉不会产生疲劳感。


这是业主追求宁静的独立空间,整个空间一种看似「破旧」的高价美学,更是一种生活态度。不主张空无一物的形式感,更注重质朴、原生态的软装搭配,以原生态的质感取代奢华,营造自然氛围感。


最后,别墅改造设计师在充分尊重业主喜好的同时,适当地通过空间语言去表现“家”的意义,秉承侘寂风随性自然的设计理念,融合现代功能,使之成为家庭情感的联结。岁月是最好的诧寂,时间让空间变得有深度,老物件使空间变得有力量,没有任何别的刻意的雕琢,最好的设计是物体与物体,空间与空间相互的关系,物体与空间之间的平等对话。剥离外在的繁琐,不断追寻纯粹的内在空间。


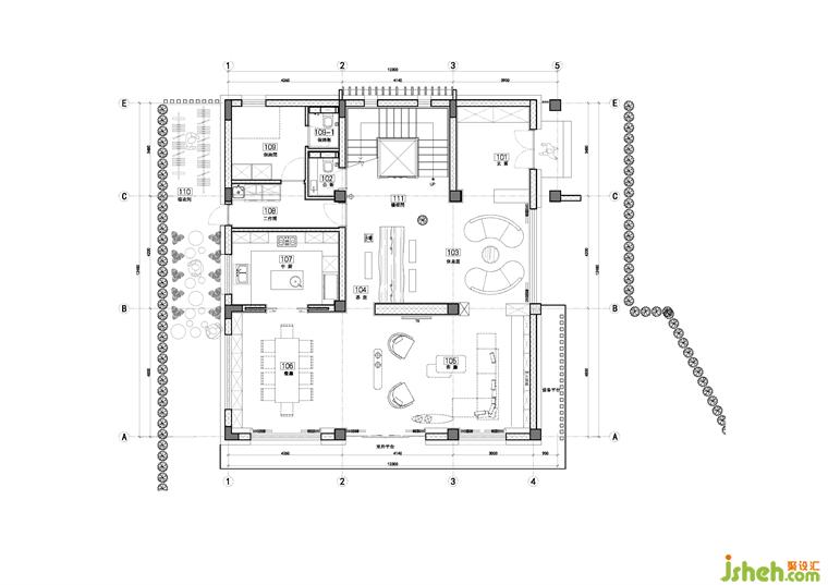
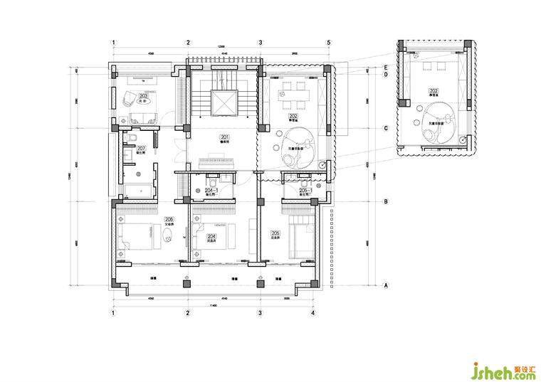
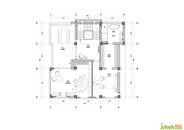
平面图
1F : 以客餐厅、茶室为主的公共空间
2F : 开放式书房(亲子活动空间)、小孩房、老人房
3F : 主卧、主卫、衣帽间、活动室、露台(业主夫妇独立的活动空间)
更多别墅改造设计请关注聚设汇装修平台: