欢迎光临聚设汇,装修找设计就上聚设汇!
   咨询电话:15602987227
登录    注册
聚设汇
首页 > 家装 > 黑屋变形记

黑屋变形记

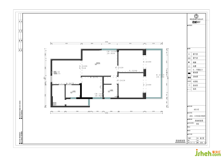
装修公司将厨房阳台取消,作为卫生间及设备间的一部分,把厨房扩大增加操作空间,打掉了厨房和卫生间的墙。

并且增加活动早餐台,厨房门整个扩大换成移门,引入客厅光线,让厨房做饭变得更加透亮。

装修公司在设计中把原本比较大的阳台通过移门一分为二,一边作为生活阳台,一边作为主卧部分。充分的把阳台空间利用起来,提升休息区域空间,制造一个活动空间让生活更加舒适。

近相设计机构

设计收费:面议 元/平             

擅长类型: 现代,豪宅

在线咨询

扫描二维码关注我们的微信

深圳市聚设汇文化传媒有限公司
主编热线:15602987227
总部:深圳市罗湖区梨园路128号宝能汽车大楼416单元
佛山、东莞、成都、重庆、福州、厦门、南昌、武汉、
杭州、苏州、温州、郑州、长春、沈阳、贵阳、柳州、
哈尔滨、九江等城市设立办事处
© 2017-2021 Jsheh.com 版权所有 粤ICP备17079093号
展开
回到顶部