欢迎光临聚设汇,装修找设计就上聚设汇!
   咨询电话:15602987227
登录    注册
聚设汇
首页 > 商业 > 勾勒LOFT生活蓝本的内在轮廓(二)

勾勒LOFT生活蓝本的内在轮廓(二)

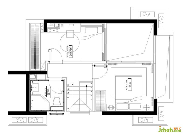
主卧用视觉上跳跃又不刺眼的赤茶色,调动了主色调灰色的沉稳。两处线条简洁却不乏味的灯饰提升了整个空间的律动感,仿佛灯光不是打在床侧,而是心灵的侧面。

室内设计师

客卧将大色块与不同纹理的图案调和得相得益彰,舒适简洁。设计师把金属光泽蔓延到了这里,与客厅风格遥相呼应。

儿童房在大面积白色的基础上,融入了太空蓝和明黄色,如男孩般清爽简单,也如童年——让记忆的幕墙留白,撒下星光烁烁的未来。

东莞市金秋装饰设计有限公司

设计收费:300-600 元/平             

擅长类型: 样板房、售楼处、会所、私人豪宅

在线咨询

扫描二维码关注我们的微信

深圳市聚设汇文化传媒有限公司
主编热线:15602987227
总部:深圳市罗湖区梨园路128号宝能汽车大楼416单元
佛山、东莞、成都、重庆、福州、厦门、南昌、武汉、
杭州、苏州、温州、郑州、长春、沈阳、贵阳、柳州、
哈尔滨、九江等城市设立办事处
© 2017-2021 Jsheh.com 版权所有 粤ICP备17079093号
展开
回到顶部