04
QUIET GUARD
安静的守护
主卧灰绿皮床与客厅氛围呼应
意大利设计师Flos的落地灯作品非常应景的守护在床边
与另一头的北欧ins艺术台灯组成了绝佳CP


书房主要男主人使用
简洁刚硬 颇有钢铁侠风格
书柜的所有柜门皆可滑动开启
别墅装修拥有很好的藏书空间
书桌边框和支架采用哑光航空铝材
桌角设计成三角面
提高了安全性
也雕刻了美感
卫生间采用深色花纹瓷砖
刻意营造视觉的冲击
透出一丝生活的神秘感

两个次卧简洁有力
别墅装修在中性色中带出平缓的节奏
真皮与木纹的衔接给平凡注入了一点温柔



05
ANALYSIS DIAGRAM
分析图
一层平面布置图 P. 30
二层平面布置图
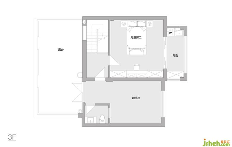
三层平面布置图
更多别墅装修请关注聚设汇装修平台: